Рейтинг: 84
Паспорт верифицирован
Всего отзывов: 0
  • Работ в портфолио: 14
  • Типовых услуг: 0
  • Работ на продажу: 0
  • Возраст: 38 лет
  • Зарегистрирован: 20.11.2023
Была на сайте:

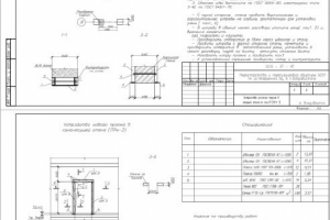
Два вновь прорубаемых проема в стенах из кирпича (несущей и само

Описание

Усиление двух проемов при перепланировке квартиры по ул. Набережная, 5в в г. Владивостоке. Проем в несущей кирпичной стене толщиной 640 мм, усиленный металлической обоймой из прокатного швеллера. Проем в самонесущей стене из легкобетонных блоков толщиной 290 мм, усиленный обоймой из прокатного швеллера. Первое усиление рассчитано на нагрузку от вышележащих этажей, второй запроектирован конструктивно.

Презентация проекта

pic4507536.jpg

Оценили проект:

0