Рейтинг: 88
не верифицирован
Всего отзывов: 1 0
  • Работ в портфолио: 8
  • Типовых услуг: 0
  • Работ на продажу: 0
Был на сайте:

Структурированная кабельная система и телефония

Используемые навыки:

Описание

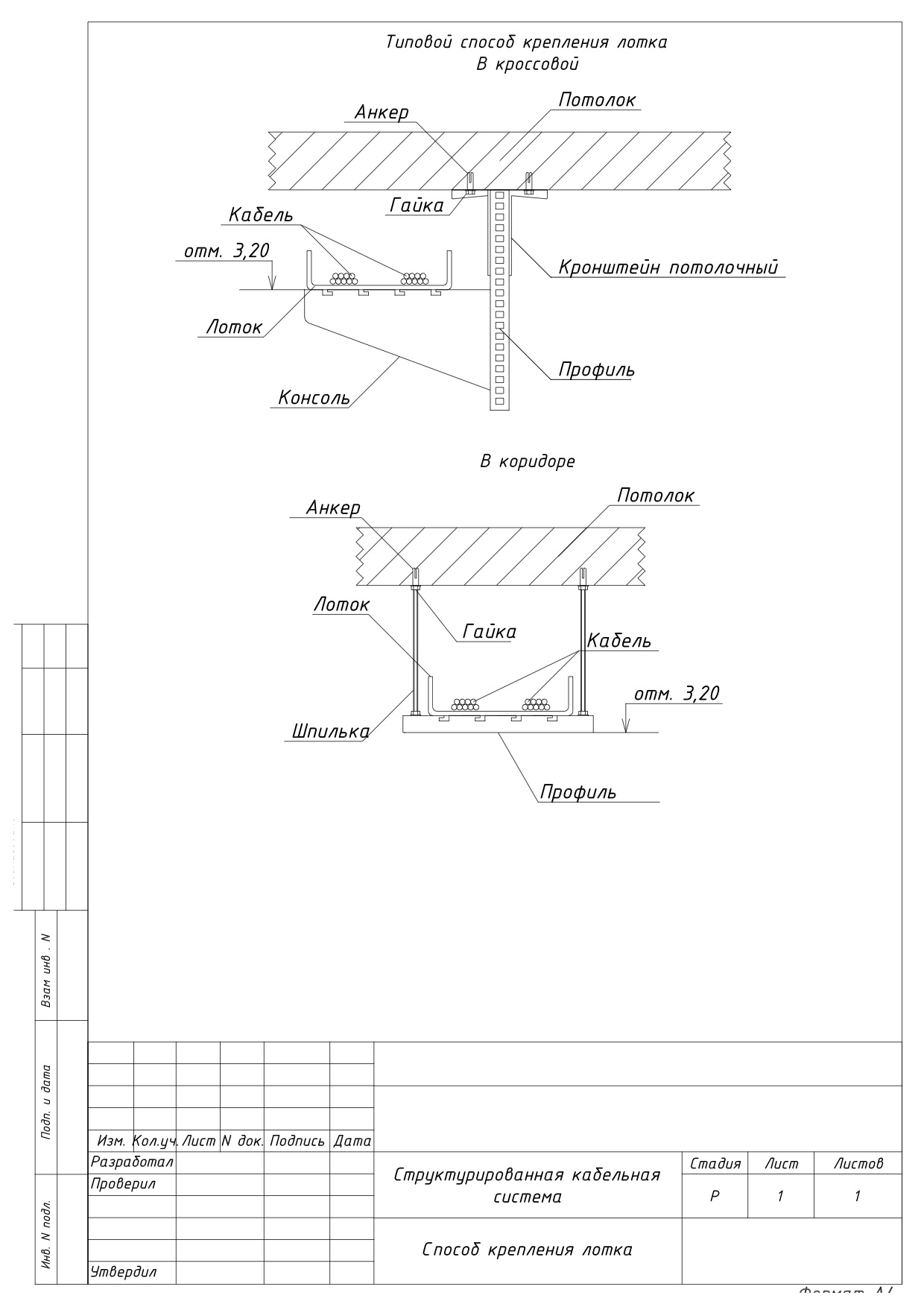
Примеры чертежей структурированной кабельной системы и местной телефонной связи

Презентация проекта

pic2058595.jpg
лоток.jpg
план.jpg
структура.jpg
структура2.jpg
телефония.jpg
шкаф.jpg

Оценили проект:

0