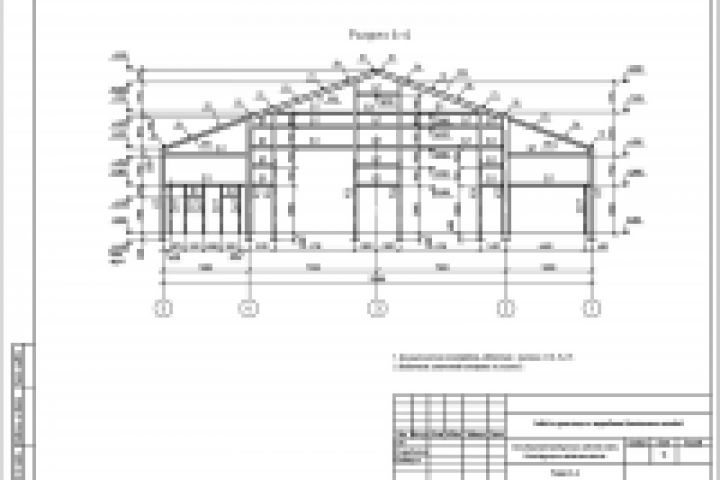
Санпропускник грязной зоны_КМ
Для полной функциональности этого сайта необходимо включить JavaScript.
Ялта
44 года
На сайте с: 07.10.2014
Видеть и делать новое — очень большое удовольствие.
Хлопец Артем
Artemproekt
Рейтинг: 192
не верифицирован
Всего отзывов:
2
0
Выполнил заданий:
3
Работ в портфолио:
122
Типовых услуг:
0
Работ на продажу:
0
Был на сайте:
2025-03-20 в 02:19
inbox
profintem@gmail.com
profintem.wordpress.com
Youtube
Предложить работу
Добавить в избранное
Добавить рекомендацию
Пожаловаться
Инженерия
41
0
Санпропускник грязной зоны_КМ
Используемые навыки:
Проектирование объектов
Описание
Решение
Результат
Соавторы
Презентация проекта
Примеры реализации
Описание
Презентация проекта
Оценили проект:
0
×
Оценили проект
×
Авторизация
Для того чтобы оценивать проекты, вам нужно войти на сайт
Другие проекты
Все проекты
7.1_Инкубатор в Воронежской обл._план, разрезы, узлы.
1.1_Сервисный центр г. Серов_ОД
4.4_Птицефабрика Можайская_АБК_фасады
FREELANCE.RU
Toggle navigation
Нанять фрилансера
Заказчику
Найти по специализации
Найти по услугам
Провести конкурс
Разместить задание
Виртуальный HR
Другое
Найти работу
Фрилансеру
Найти задание
Присоединиться к команде
Участвовать в конкурсе
Предложить услугу
Другое
Возможности
Для заказчика
Для фрилансера
Вход
Разместить задание
▲