Видеть и делать новое — очень большое удовольствие.

Хлопец Артем Artemproekt

Рейтинг: 192
не верифицирован
Всего отзывов: 2 0
Выполнил заданий: 3
  • Работ в портфолио: 122
  • Типовых услуг: 0
  • Работ на продажу: 0
  • Возраст: 44 года
  • Зарегистрирован: 07.10.2014
Был на сайте:

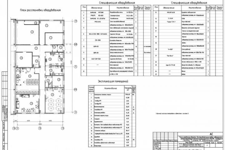
6.7_Воркута. Теплая стоянка_план расстановки оборудования.

Описание

План расстановки оборудования.

Ссылки на примеры реализации

 proekt180.com

Презентация проекта

pic3445501.jpg

Оценили проект:

0