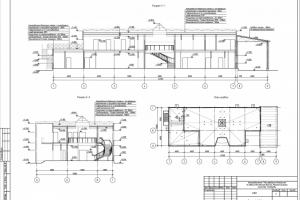
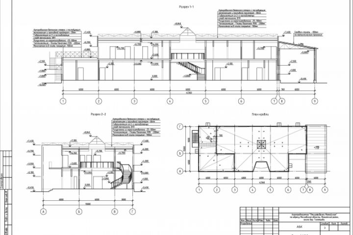
4.3_Птицефабрика Можайская_АБК_разрезы, план кровли
Для полной функциональности этого сайта необходимо включить JavaScript.
Ялта
Видеть и делать новое — очень большое удовольствие.
Хлопец Артем
Artemproekt
Рейтинг: 192
не верифицирован
Всего отзывов:
2
0
Выполнил заданий:
3
Работ в портфолио:
122
Типовых услуг:
0
Работ на продажу:
0
Возраст:
44 года
Зарегистрирован:
07.10.2014
Был на сайте:
2025-03-20 в 02:19
inbox
profintem@gmail.com
profintem.wordpress.com
Youtube
Предложить работу
Добавить в избранное
Добавить рекомендацию
Пожаловаться
Дизайн пространства
57
0
4.3_Птицефабрика Можайская_АБК_разрезы, план кровли
Используемые навыки:
Архитектура зданий и сооружений
Описание
Решение
Результат
Соавторы
Презентация проекта
Примеры реализации
Описание
Разрезы. План кровли.
Ссылки на примеры реализации
proekt180.com
Презентация проекта
Оценили проект:
0
×
Оценили проект
×
Авторизация
Для того чтобы оценивать проекты, вам нужно войти на сайт
Другие проекты
Все проекты
Схема расположения прогонов кровли.
1.4_Сервисный центр г. Серов_схема вентиляции
4.18_Жилой дом_спецификация оборудования
FREELANCE.RU
Toggle navigation
Нанять фрилансера
Заказчику
Найти по специализации
Найти по услугам
Провести конкурс
Разместить задание
Виртуальный HR
Найти студию
Другое
Найти работу
Фрилансеру
Найти задание
Присоединиться к команде
Участвовать в конкурсе
Предложить услугу
Другое
Возможности
Для заказчика
Для фрилансера
Вход
Разместить задание
▲