Дело твоей жизни и есть основной соблазн

Алексей Lis3lis

Рейтинг: 64
не верифицирован
Всего отзывов: 0
  • Работ в портфолио: 14
  • Типовых услуг: 0
  • Работ на продажу: 0
  • Зарегистрирован: 16.11.2016
Был на сайте:

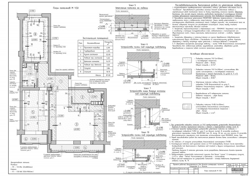
План потолков. Сечения по потолкам

Используемые навыки:

Описание

План потолков. Узлы монтажа потолка. Скрытые подсветки и ниши потолка. Последовательность выполнения работ по утеплению лоджии

Ссылки на примеры реализации

 allisovski.com

Презентация проекта

pic3721975.jpg

Оценили проект:

0