Индивидуальный подход в адекватные сроки

Андрей Ковальский Andrey_Kovalskiy

Рейтинг: 211
не верифицирован
Всего отзывов: 11 0
Выполнил заданий: 6
  • Работ в портфолио: 71
  • Типовых услуг: 0
  • Работ на продажу: 0
Был на сайте:

Монолитные ж/б фундаменты, плиты, ростверки

Используемые навыки:

Описание

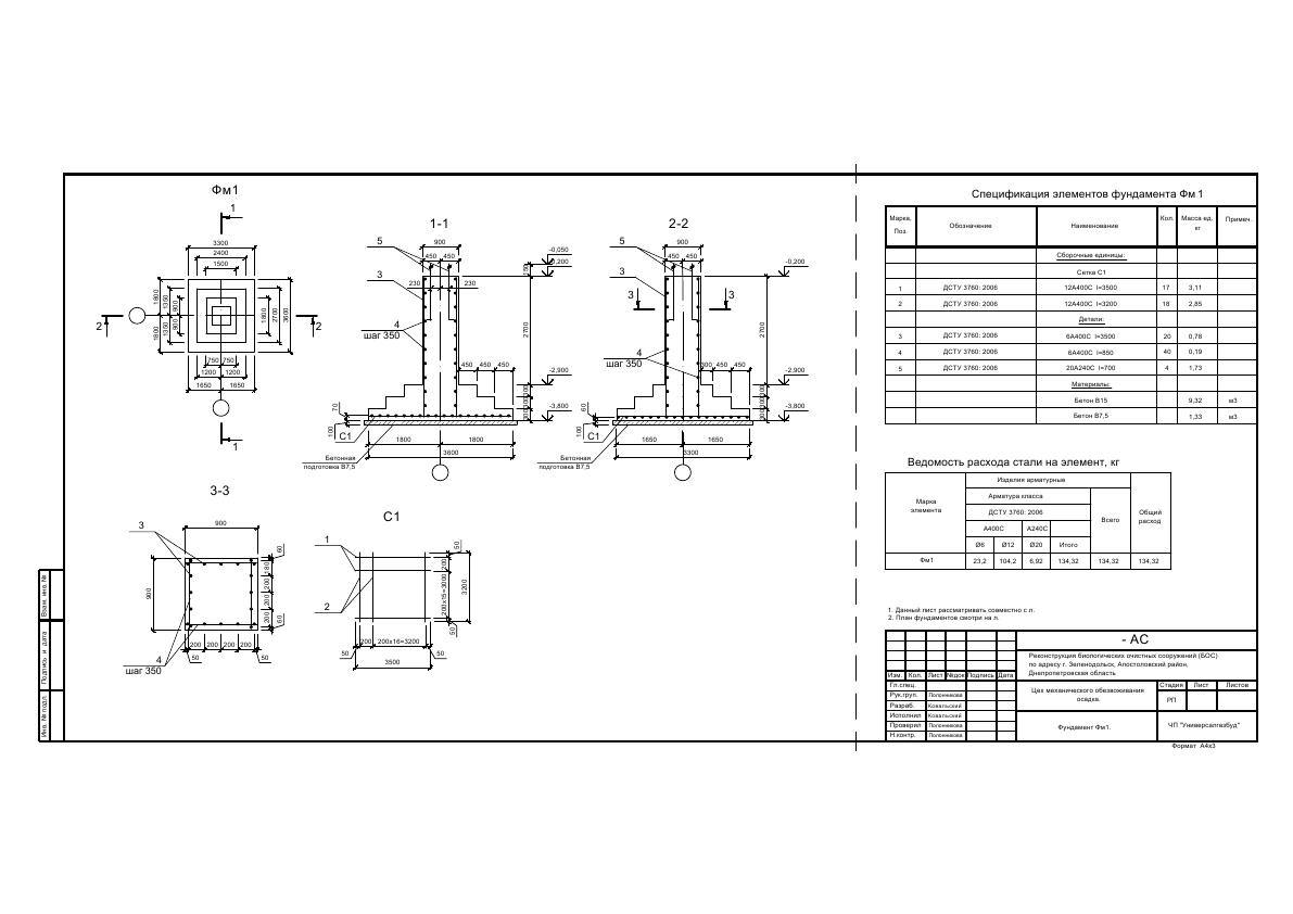
Монолитные столбчатые фундаменты 2-хэтажного здания с металлическим каркасом и сборными плитами перекрытия очистных сооружений

Презентация проекта

pic2377613.jpg

Оценили проект:

0