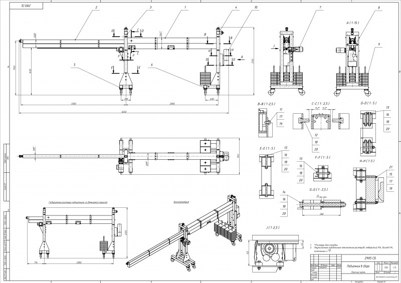
Телескопический строительный подъемник
Для полной функциональности этого сайта необходимо включить JavaScript.
Харьков
Профессиональные решения поставленных задач
Сергей Сидоренко
serg_fm
Рейтинг: 221
не верифицирован
Всего отзывов:
0
Нейросаммари
Активность:
Работ в портфолио:
31
Типовых услуг:
0
Работ на продажу:
0
Зарегистрирован:
02.11.2012
Был на сайте:
2026-02-20 в 12:23
inbox
Предложить работу
Добавить в избранное
Добавить рекомендацию
Пожаловаться
Инженерия
29
0
Телескопический строительный подъемник
Используемые навыки:
Чертежи/Схемы
Описание
Решение
Результат
Соавторы
Презентация проекта
Примеры реализации
Описание
Презентация проекта
Оценили проект:
0
×
Оценили проект
×
Авторизация
Для того чтобы оценивать проекты, вам нужно войти на сайт
Другие проекты
Все проекты
Токоприемник для передачи энергии и сигнала
Передаточная тележка
Прицеп
FREELANCE.RU
Toggle navigation
Нанять фрилансера
Заказчику
Найти по специализации
Найти по услугам
Провести конкурс
Разместить задание
Виртуальный HR
Найти студию
Другое
Найти работу
Фрилансеру
Найти задание
Присоединиться к команде
Участвовать в конкурсе
Предложить услугу
Другое
Возможности
Для заказчика
Для фрилансера
Вход
Разместить задание
▲