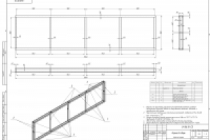
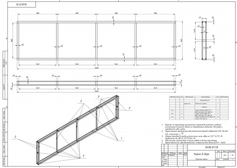
Каркас рекламного щита
Для полной функциональности этого сайта необходимо включить JavaScript.
Харьков
На сайте с: 02.11.2012
Профессиональные решения поставленных задач
Сергей Сидоренко
serg_fm
Рейтинг: 221
не верифицирован
Всего отзывов:
0
Активность:
Работ в портфолио:
31
Типовых услуг:
0
Работ на продажу:
0
Был на сайте:
2025-10-22 в 19:34
inbox
Предложить работу
Добавить в избранное
Добавить рекомендацию
Пожаловаться
Инженерия
53
0
Каркас рекламного щита
Используемые навыки:
Чертежи/Схемы
Описание
Решение
Результат
Соавторы
Презентация проекта
Примеры реализации
Описание
Презентация проекта
Оценили проект:
0
×
Оценили проект
×
Авторизация
Для того чтобы оценивать проекты, вам нужно войти на сайт
Другие проекты
Все проекты
Грузоподъемное устройство
Рама грузовых автомобильных весов
Телескопический подъемник
FREELANCE.RU
Toggle navigation
Нанять фрилансера
Заказчику
Найти по специализации
Найти по услугам
Провести конкурс
Разместить задание
Виртуальный HR
Другое
Найти работу
Фрилансеру
Найти задание
Присоединиться к команде
Участвовать в конкурсе
Другое
Возможности
Для заказчика
Для фрилансера
Вход
Разместить задание
▲