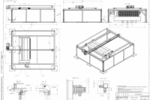
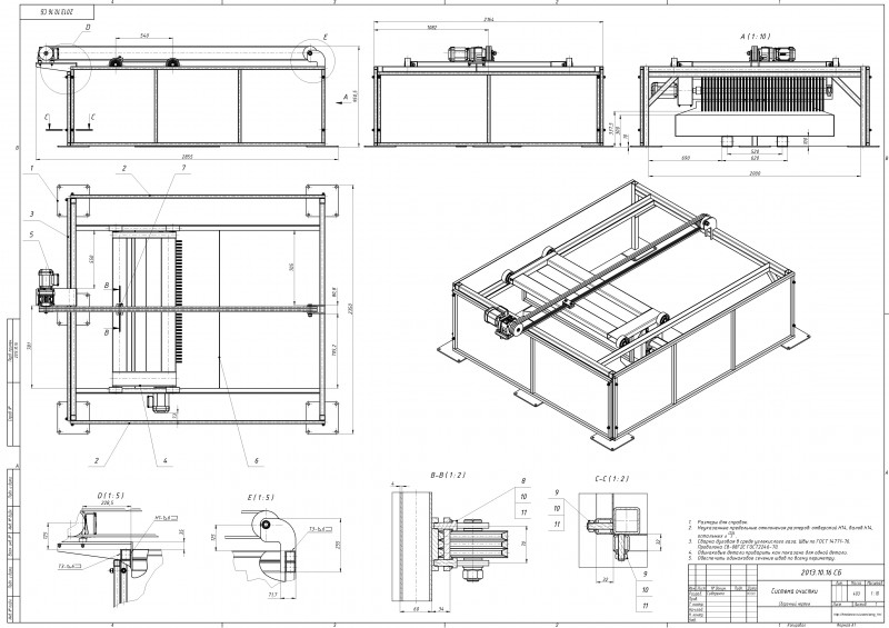
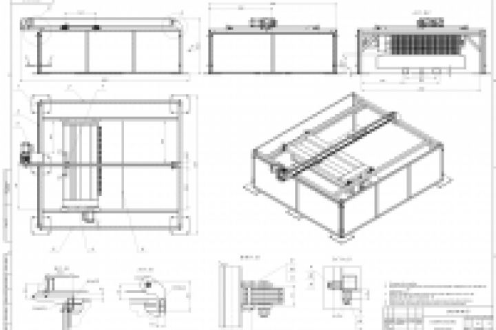
Система очистки поддонов
Для полной функциональности этого сайта необходимо включить JavaScript.
Харьков
Профессиональные решения поставленных задач
Сергей Сидоренко
serg_fm
Рейтинг: 221
не верифицирован
Всего отзывов:
0
Нейросаммари
Активность:
Работ в портфолио:
31
Типовых услуг:
0
Работ на продажу:
0
Зарегистрирован:
02.11.2012
Был на сайте:
2026-02-20 в 12:23
inbox
Предложить работу
Добавить в избранное
Добавить рекомендацию
Пожаловаться
Инженерия
37
0
Система очистки поддонов
Используемые навыки:
Чертежи/Схемы
Описание
Решение
Результат
Соавторы
Презентация проекта
Примеры реализации
Описание
Презентация проекта
Оценили проект:
0
×
Оценили проект
×
Авторизация
Для того чтобы оценивать проекты, вам нужно войти на сайт
Другие проекты
Все проекты
Кран-балка подвесная г/п 7т
Грузовая тележка
Прицеп квадроцикла
FREELANCE.RU
Toggle navigation
Нанять фрилансера
Заказчику
Каталог фрилансеров
Каталог PRO
Каталог студий
Каталог услуг
Каталог работ
Виртуальный HR
Умный поиск
Провести конкурс
Разместить задание
Найти работу
Найти задание
Присоединиться к команде
Участвовать в конкурсе
Предложить услугу
Вход
Разместить задание
▲