Проекты деревянных домов, бань - разбревновка АТ венцы

Uma Projectstroy

Рейтинг: 154
не верифицирован
Всего отзывов: 0
  • Работ в портфолио: 104
  • Типовых услуг: 1
  • Работ на продажу: 0
  • Зарегистрирован: 15.03.2012
Был на сайте:

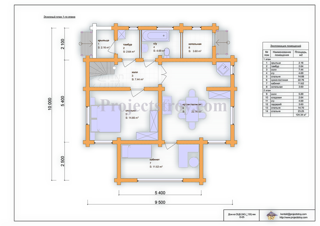
Дом из оцилиндрованного бревна

Описание

Проект дома из оцилиндрованного бревна 9.5 х 10 м
Полноценный второй этаж высота у стены 2 м

Три спальни и кабинет на первом этаже

Показатели для сметного расчета строительства D-25:
-общая площадь - 124 кв. м;
-объем ОЦБ 240 (_130) мм ~ 92 куб. м (отход~2%);
-пог. длина ОЦБ ~2020 м;
-балки перекрытий - 100х150 мм;
-стропила - 50х200 мм;
-площадь кровли и периметр - 143 кв. м и 109 пог. м;
-угол кровли ~ 23 гр.;
-пог. м фундамента дома (ленточный - плита - сваи по востр.) - 68 м;
-высота 1-го этажа - 2.8 м;
-высота подъема 2-го этажа - 2 м

Ссылки на примеры реализации

 projectstroy.com/project_d_25.html

Презентация проекта

pic3230388.jpg
d_25_1et.jpg

Оценили проект:

0