Проекты деревянных домов, бань - разбревновка АТ венцы

Uma Projectstroy

Рейтинг: 154
не верифицирован
Всего отзывов: 0
  • Работ в портфолио: 104
  • Типовых услуг: 1
  • Работ на продажу: 0
  • Зарегистрирован: 15.03.2012
Был на сайте:

Садовый дом или баня из оцилиндрованного бревна

Описание

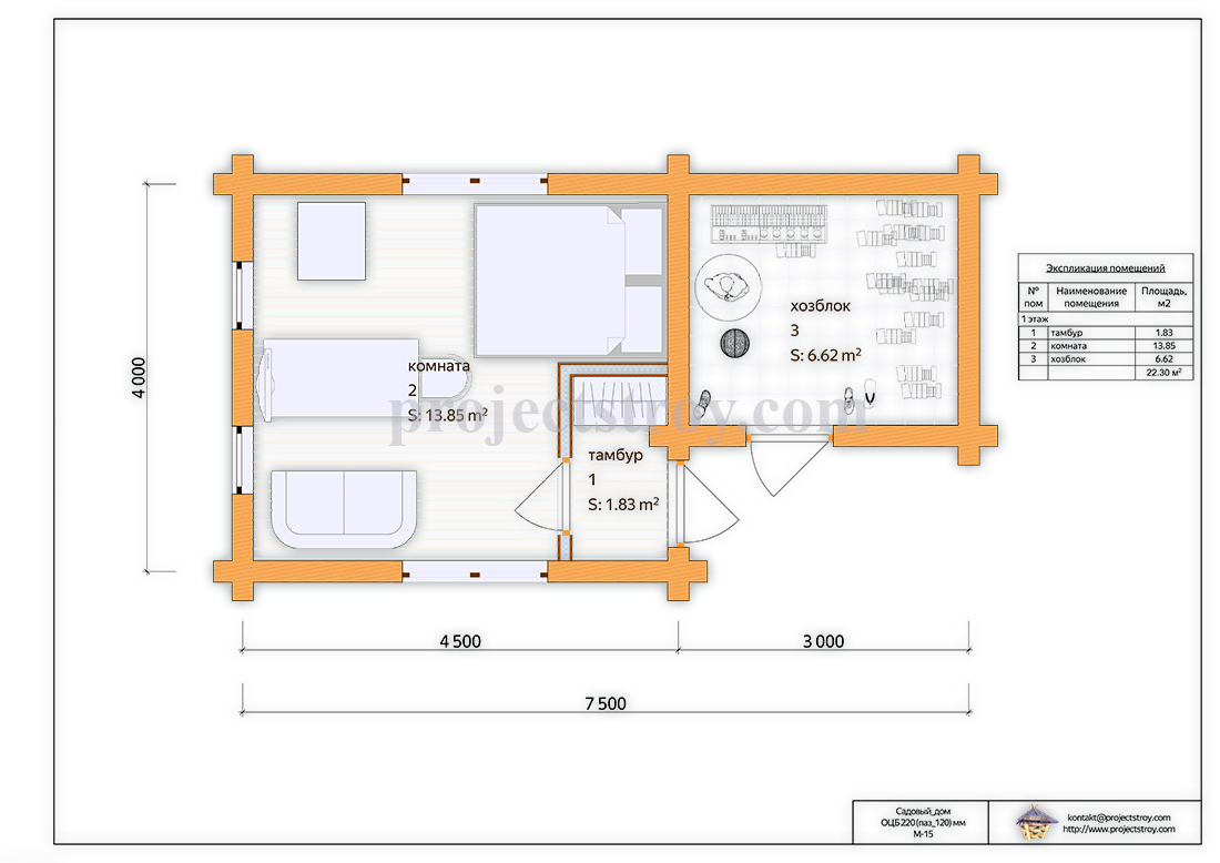
Последний проект в этом году садового домика из оцилиндрованного бревна 220 мм, размером 7.5 х 4 м.
Может использоваться в качестве хозблока или переделать под баню.

Показатели для сметного расчета строительства M-15:
-общая площадь по экспликации - 22 кв. м;
-объем ОЦБ 220 (паз_120) мм ~19 куб. м (отход~7%);
-пог. длина заготовок бревна ~500 м;
-пог. длина фундамент ~27 м;
-стропила - 50х150 мм;
-балки пер. - 100х200 мм;
-площадь кровли и периметр - 68 кв. м и 86 пог. м;
-угол кровли ~20-33 гр.;
-высота 1-го этажа - от 2.27 м

Ссылки на примеры реализации

 projectstroy.com/project_m_15.html

Презентация проекта

pic3329423.jpg
m_15_1et.jpg

Оценили проект:

0