Проекты деревянных домов, бань - разбревновка АТ венцы

Uma Projectstroy

Рейтинг: 154
не верифицирован
Всего отзывов: 0
  • Работ в портфолио: 104
  • Типовых услуг: 1
  • Работ на продажу: 0
  • Зарегистрирован: 15.03.2012
Был на сайте:

Дом из профилированного бруса

Описание

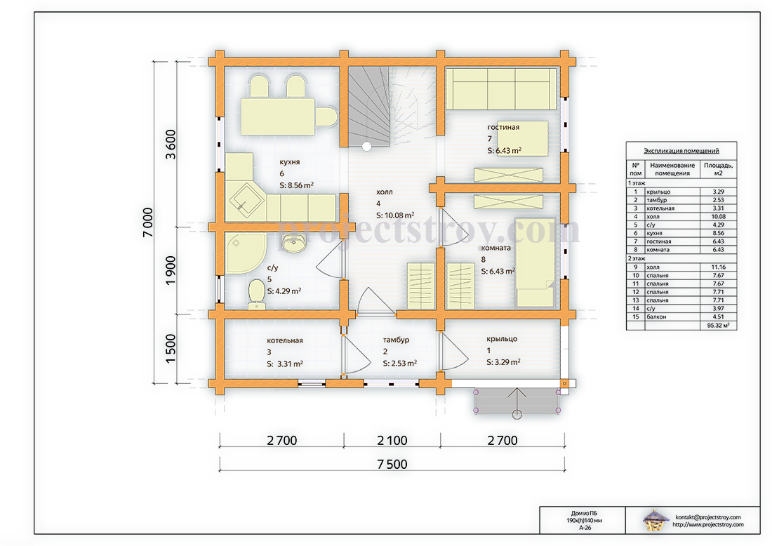
Небольшой дом до 100 кв. м из профилированного бруса 7.5 х 7 м
Деревянный двухэтажный дом с пятью комнатами

Показатели для сметного расчета строительства A-26:
-общая площадь по экспликации - 95.3 кв. м;
-объем бруса ПБ 190х(h)140 мм ~73 куб. м (отход~2%);
-пог. длина заготовок бруса ~2700 м;
-пог. длина фундамент ~53 м;
-стропила - 50х200 мм;
-балки пер. - 100х150 мм;
-площадь кровли и периметр - 110 кв. м и 73 пог. м;
-угол кровли ~33 гр.;
-высота 1-го этажа - 2.9 м;
-высота 2-го этажа - от 1.64 м

Ссылки на примеры реализации

 projectstroy.com/project_a_26.html

Презентация проекта

pic3354813.jpg
a_26_1et.jpg

Оценили проект:

0