Проекты деревянных домов, бань - разбревновка АТ венцы

Uma Projectstroy

Рейтинг: 154
не верифицирован
Всего отзывов: 0
  • Работ в портфолио: 104
  • Типовых услуг: 1
  • Работ на продажу: 0
  • Зарегистрирован: 15.03.2012
Был на сайте:

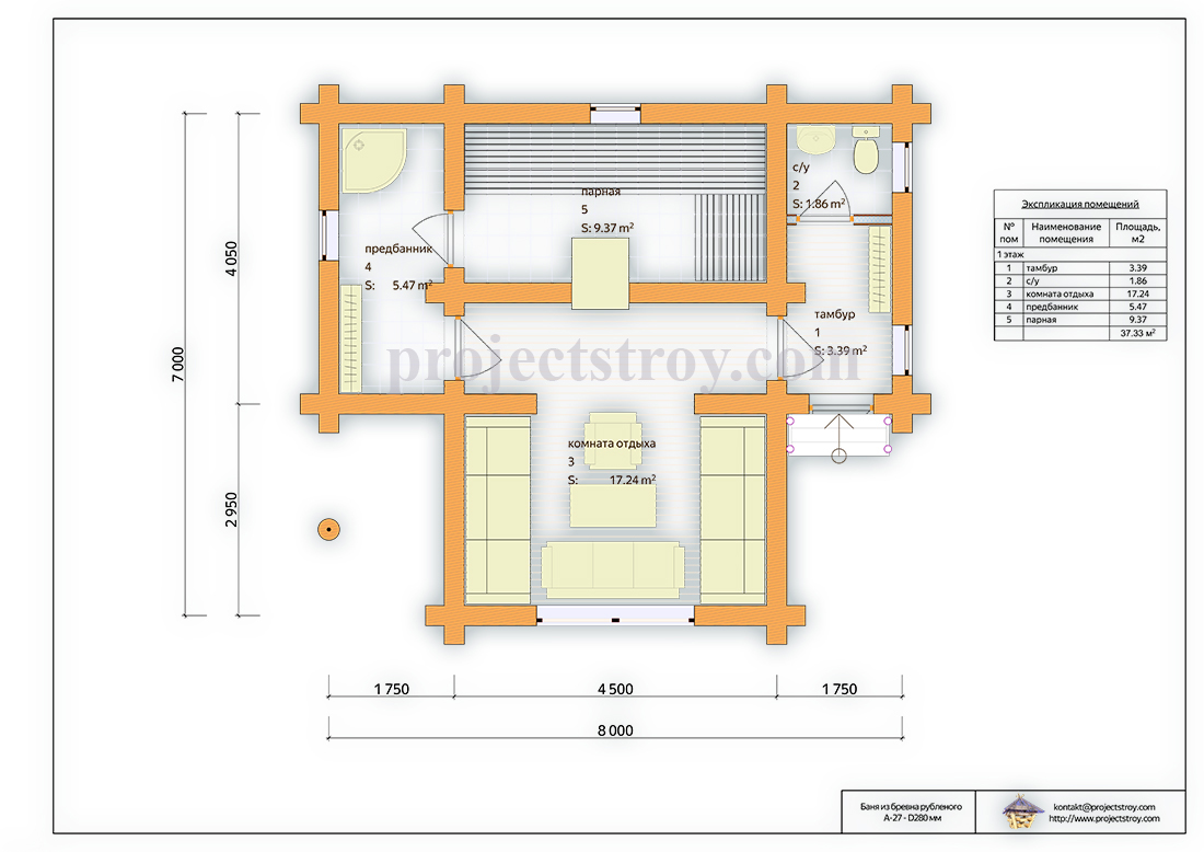
Баня из бревна рубленого 8 на 7 м

Описание

Баня из рубленого бревна 8 х 7 м
Сруб из массива бревна диаметром 280 мм

Большая парная и комната отдыха⚠

Показатели для сметного расчета строительства A-27:
-общая площадь по экспликации - 37 кв. м;
-объем бревна 280 (_140) мм ~57 куб. м (отход~10%);
-пог. длина заготовок бревна ~930 м;
-пог. длина фундамент ~49 м;
-стропила - 50х200 мм;
-балки пер. - 100х150 мм;
-площадь кровли и периметр - 100 кв. м и 62 пог. м;
-угол кровли ~23 гр.;
-высота 1-го этажа - от 2.4 м

Ссылки на примеры реализации

 projectstroy.com/project_a_27.html

Презентация проекта

pic3367772.jpg
a_27_1et.jpg

Оценили проект:

0