Проекты деревянных домов, бань - разбревновка АТ венцы

Uma Projectstroy

Рейтинг: 154
не верифицирован
Всего отзывов: 0
  • Работ в портфолио: 104
  • Типовых услуг: 1
  • Работ на продажу: 0
  • Зарегистрирован: 15.03.2012
Был на сайте:

Деревянный дом из профилированного бруса

Описание

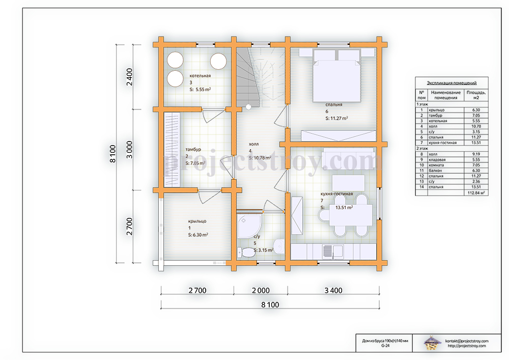
Дачный дом из профилированного бруса 8 х 8 м
Дом с 4 комнатами, брус 190х(h)140 мм

Показатели для сметного расчета строительства G-24:
-общая площадь по экспликации - 112.8 кв. м;
-объем бруса в срубе мм ~77 куб. м из 6 м;
-пог. длина заготовок бруса ~2900 м;
-пог. длина фундамент ~58 м;
-стропила - 50х200 мм;
-балки - 100х150 мм;
-площадь кровли и периметр - 123 кв. м и 83 пог. м;
-угол кровли ~28 гр.;
-высота 1-го этажа - 2.9 м;
-высота 2-го этажа - от 1.6 м

Ссылки на примеры реализации

 projectstroy.com/project_g_24.html

Презентация проекта

pic3405765.jpg
g_24_1et.jpg

Оценили проект:

0