Проекты деревянных домов, бань - разбревновка АТ венцы

Uma Projectstroy

Рейтинг: 154
не верифицирован
Всего отзывов: 0
  • Работ в портфолио: 104
  • Типовых услуг: 1
  • Работ на продажу: 0
  • Зарегистрирован: 15.03.2012
Был на сайте:

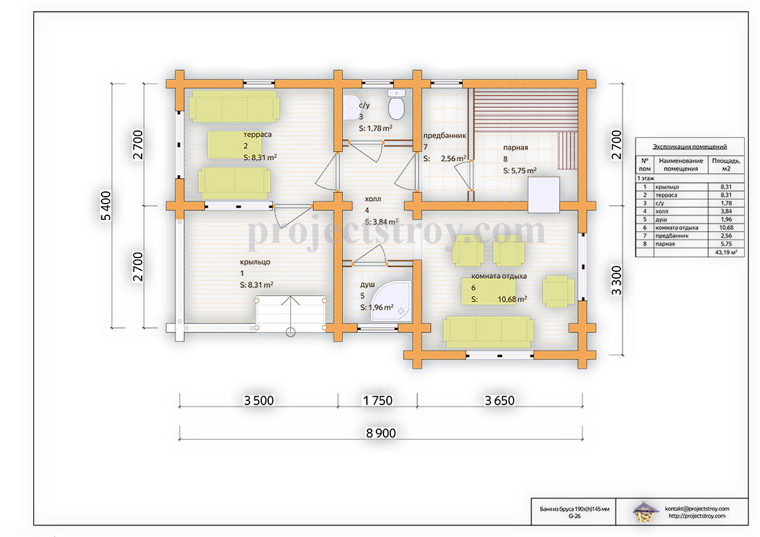
Баня из профилированного бруса

Описание

Баня из профилированного бруса
Размер по осям 8.9 х 5.4 м

Показатели для сметного расчета строительства G-26:
-общая площадь по экспликации - 43 кв. м;
-объем проф бруса 190х(h)145 мм ~27 куб. м из 6 м;
-пог. длина заготовок бруса ~980 м;
-пог. длина фундамент ~50 м;
-стропила - 50х200 мм;
-балки - 100х150 мм;
-площадь кровли и периметр - 83 кв. м и 90 пог. м;
-угол кровли ~20 гр.;
-высота 1-го этажа - от 1.9 м

Ссылки на примеры реализации

 projectstroy.com/project_g_26.html

Презентация проекта

pic3478991.jpg
g_26_1et.jpg

Оценили проект:

0