Проекты деревянных домов, бань - разбревновка АТ венцы

Uma Projectstroy

Рейтинг: 154
не верифицирован
Всего отзывов: 0
  • Работ в портфолио: 104
  • Типовых услуг: 1
  • Работ на продажу: 0
  • Зарегистрирован: 15.03.2012
Был на сайте:

дом из бруса

Используемые навыки:

Описание

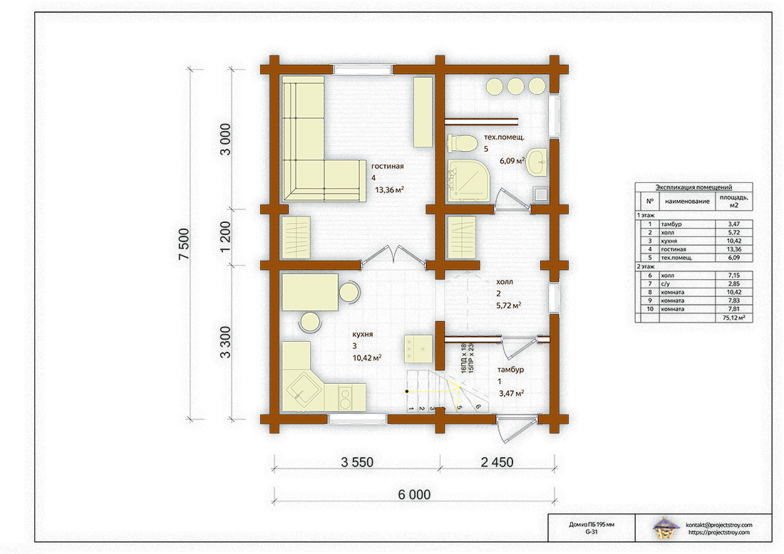
Дом 6 х 7.5 м
Проект из профилированного бруса с тремя комнатами

Показатели для сметного расчета строительства G-31:
-общая площадь по экспликации - 75 кв. м
-объем бруса 195х145 мм мм - 57 куб. м из 6 м
-пог. длина заготовок бруса - 2150 м
-пог. фундамента - 44 м
-балки - 100 х 200 мм
-стропила - 50 х 200 мм
-площадь кровли и периметр - 88 кв. м и - 111 пог. м
-угол кровли - 12-24 гр.
-высота 1-го этажа - 2.7 м
-высота 2-го этажа - от 1.60 м
-высота строения - 6.9 м

Ссылки на примеры реализации

 projectstroy.com/project_g_31.html

Презентация проекта

pic4136518.jpg
g_31_1et.jpg

Оценили проект:

0