Делай что можешь, с тем что имеешь, там где ты есть.

Илья Жеребцов geodezist1001

Рейтинг: 87
Паспорт верифицирован
Всего отзывов: 0
  • Работ в портфолио: 17
  • Типовых услуг: 0
  • Работ на продажу: 0
  • Возраст: 34 года
  • Зарегистрирован: 30.10.2024
Был на сайте:

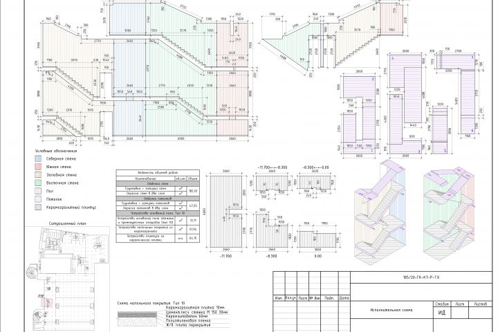
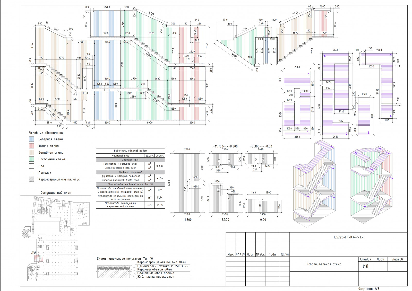
Исполнительная схема на отделочные работы

Описание

Пример исполнительной схемы на отделочные работы лестничных пролетов

Презентация проекта

pic4625640.jpg

Оценили проект:

0