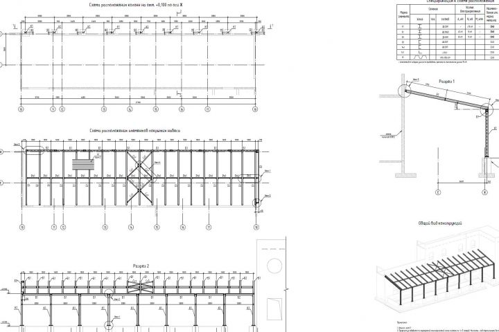
КМ на здание
Для полной функциональности этого сайта необходимо включить JavaScript.
Кирилл Атрашков
ak77
Рейтинг: 88
не верифицирован
Всего отзывов:
0
Опубликовано заданий:
1
Работ в портфолио:
13
Типовых услуг:
0
Работ на продажу:
9
Зарегистрирован:
08.08.2024
Был на сайте:
2024-11-16 в 23:35
Добавить в избранное
Добавить рекомендацию
Пожаловаться
Инженерия
20
0
КМ на здание
Используемые навыки:
Строительные конструкции
Описание
Решение
Результат
Соавторы
Презентация проекта
Примеры реализации
Описание
Разработка КМ
Презентация проекта
Оценили проект:
0
×
Оценили проект
×
Авторизация
Для того чтобы оценивать проекты, вам нужно войти на сайт
Другие проекты
Все проекты
Дом в стиле Райта
КНС
Дом в стиле Хай-тек
FREELANCE.RU
Toggle navigation
Нанять фрилансера
Заказчику
Найти по специализации
Найти по услугам
Провести конкурс
Разместить задание
Виртуальный HR
Найти студию
Другое
Найти работу
Фрилансеру
Найти задание
Присоединиться к команде
Участвовать в конкурсе
Предложить услугу
Другое
Возможности
Для заказчика
Для фрилансера
Вход
Разместить задание
▲