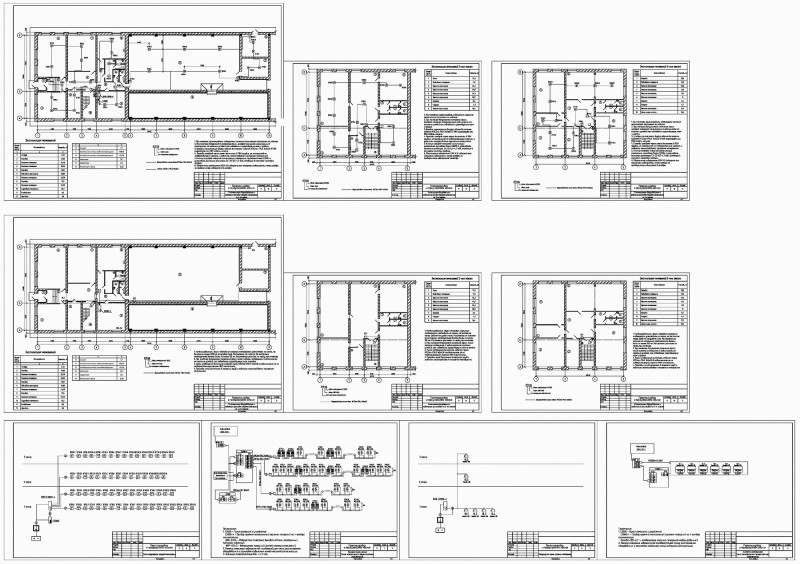
Пожарная сигнализация Склада
Для полной функциональности этого сайта необходимо включить JavaScript.
Новокузнецк
На сайте с: 07.09.2011
Олегович Михаил
mizlobin
Рейтинг: 53
не верифицирован
Всего отзывов:
1
0
Работ в портфолио:
3
Типовых услуг:
0
Работ на продажу:
0
Был на сайте:
2024-11-17 в 20:41
+7-965-829-30-82
inbox
Предложить работу
Добавить в избранное
Добавить рекомендацию
Пожаловаться
Инженерия
6
0
Пожарная сигнализация Склада
Используемые навыки:
Слаботочные системы
Описание
Решение
Результат
Соавторы
Презентация проекта
Примеры реализации
Описание
Презентация проекта
Оценили проект:
0
×
Оценили проект
×
Авторизация
Для того чтобы оценивать проекты, вам нужно войти на сайт
Другие проекты
Все проекты
Проект 2КТПБ-1600
Электроосвещение склада
FREELANCE.RU
Toggle navigation
Нанять фрилансера
Заказчику
Найти по специализации
Найти по услугам
Провести конкурс
Разместить задание
Другое
Найти работу
Фрилансеру
Найти задание
Присоединиться к команде
Участвовать в конкурсе
Другое
Возможности
Для заказчика
Для фрилансера
Вход
Разместить задание
▲