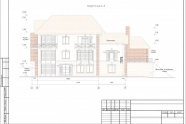
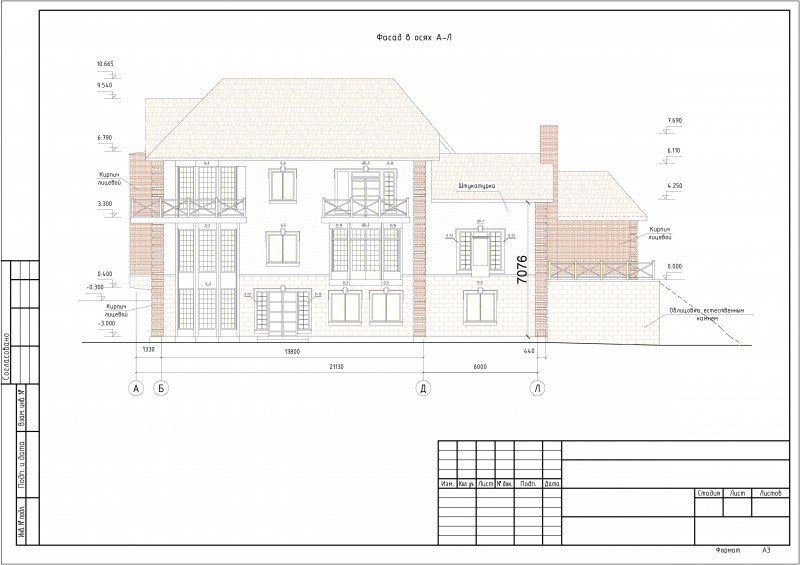
Фасад коттеджа 2
Для полной функциональности этого сайта необходимо включить JavaScript.
Санкт-Петербург
43 года
На сайте с: 21.10.2015
Сергей Дегтярев
dsm982
Рейтинг: 111
не верифицирован
Всего отзывов:
0
Нейросаммари
Работ в портфолио:
51
Типовых услуг:
0
Работ на продажу:
0
Был на сайте:
2024-11-19 в 22:52
+79110346767
inbox
dsm982@yandex.ru
Предложить работу
Добавить в избранное
Добавить рекомендацию
Пожаловаться
Дизайн пространства
28
0
Фасад коттеджа 2
Используемые навыки:
Архитектурное проектирование
Описание
Решение
Результат
Соавторы
Презентация проекта
Примеры реализации
Описание
Презентация проекта
Оценили проект:
0
×
Оценили проект
×
Авторизация
Для того чтобы оценивать проекты, вам нужно войти на сайт
Другие проекты
Все проекты
Эскиз фасада
Модель 1
Щит подшипниковый
FREELANCE.RU
Toggle navigation
Нанять фрилансера
Заказчику
Найти по специализации
Найти по услугам
Провести конкурс
Разместить задание
Виртуальный HR
Другое
Найти работу
Фрилансеру
Найти задание
Присоединиться к команде
Участвовать в конкурсе
Другое
Возможности
Для заказчика
Для фрилансера
Вход
Разместить задание
▲