Рейтинг: 160
не верифицирован
Всего отзывов: 0
  • Работ в портфолио: 100
  • Типовых услуг: 2
  • Работ на продажу: 0
Был на сайте:

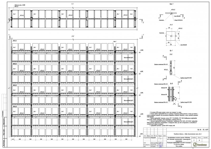
Фрагмент внутристеллажного пожаротушения

Используемые навыки:

Описание

Внутристеллажное тушение складского комплекса

Презентация проекта

pic3781592.jpg

Оценили проект:

0