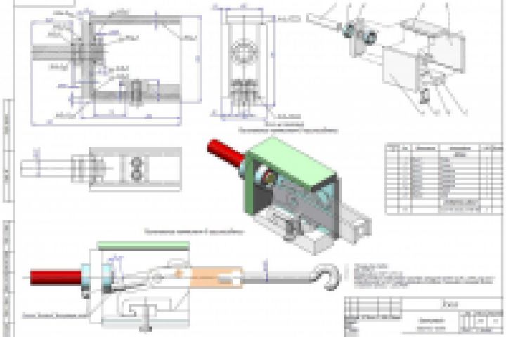
приспособление для испытания на разрыв натяжителя колес
Для полной функциональности этого сайта необходимо включить JavaScript.
Тамбов
49 лет
На сайте с: 20.06.2012
сделать лучше
Роман Мартёхин
Romsan
Рейтинг: 89
не верифицирован
Всего отзывов:
0
Опубликовал заданий:
2
Нейросаммари
Работ в портфолио:
29
Типовых услуг:
0
Работ на продажу:
0
Был на сайте:
2024-11-21 в 08:43
Предложить работу
Добавить в избранное
Добавить рекомендацию
Пожаловаться
Инженерия
14
0
приспособление для испытания на разрыв натяжителя колес
Используемые навыки:
Чертежи/Схемы
Описание
Решение
Результат
Соавторы
Презентация проекта
Примеры реализации
Описание
Разрабатывался под 15т.
Презентация проекта
Оценили проект:
0
×
Оценили проект
×
Авторизация
Для того чтобы оценивать проекты, вам нужно войти на сайт
Другие проекты
Все проекты
Электродвигатели_вао
Установка
3d гальваническая ванна вк-10
FREELANCE.RU
Toggle navigation
Нанять фрилансера
Заказчику
Найти по специализации
Найти по услугам
Провести конкурс
Разместить задание
Собрать команду
Другое
Найти работу
Фрилансеру
Найти задание
Присоединиться к команде
Участвовать в конкурсе
Другое
Возможности
Для заказчика
Для фрилансера
Вход
Разместить задание
▲