Системы связи и сигнализации

Алексей СС fire_alarm

Рейтинг: 441
не верифицирован
Всего отзывов: 36 0
Выполнил заданий: 49
  • Активность:
  • Работ в портфолио: 51
  • Типовых услуг: 3
  • Работ на продажу: 0
  • Зарегистрирован: 05.02.2016
Был на сайте:

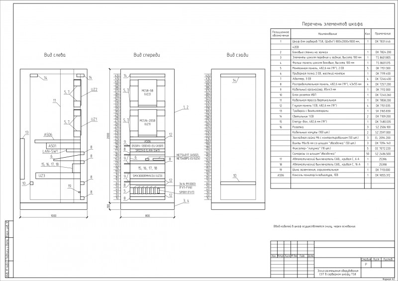
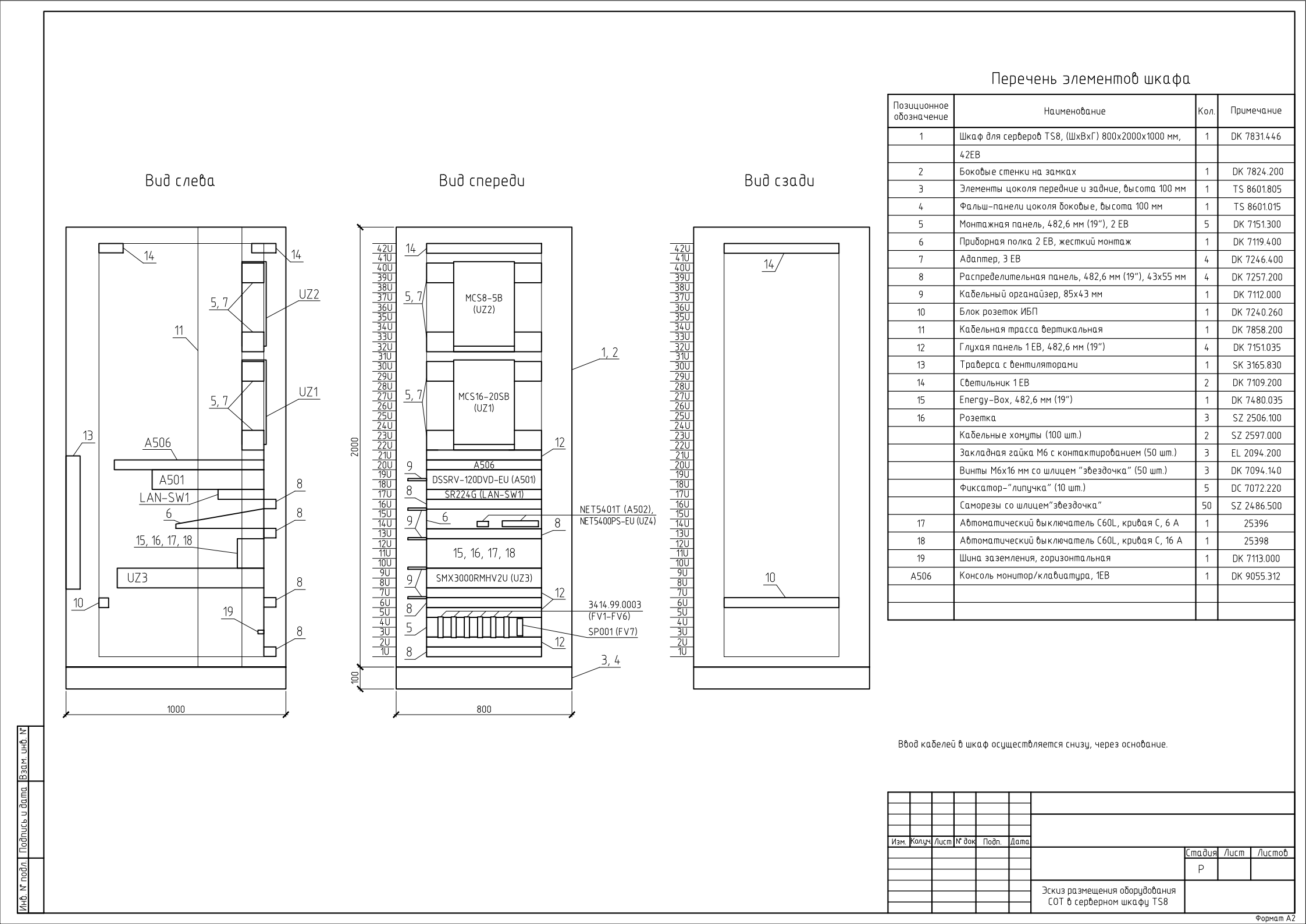
Эскиз расположения оборудования ВН в 19" шкафу

Используемые навыки:

Описание

Эскизы расположения оборудования в 19" шкафах и в уличном шкафу с обогревом

Презентация проекта

pic2945925.jpg
Эскиз шкаф СОТ.png

Оценили проект:

0