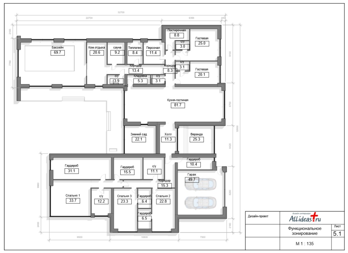
Планировочное решение
Для полной функциональности этого сайта необходимо включить JavaScript.
Москва
40 лет
На сайте с: 04.10.2012
Стаж 20+ лет
Олег Лихолат
liholatoleg
Рейтинг: 175
Паспорт верифицирован
Всего отзывов:
0
Опубликовал заданий:
1
Нейросаммари
Работ в портфолио:
105
Типовых услуг:
0
Работ на продажу:
0
Был на сайте:
2024-11-27 в 06:44
Предложить работу
Добавить в избранное
Добавить рекомендацию
Пожаловаться
Дизайн пространства
28
0
Планировочное решение
Используемые навыки:
Дизайн интерьеров
Описание
Решение
Результат
Соавторы
Презентация проекта
Примеры реализации
Описание
Дом 600м2
Презентация проекта
Оценили проект:
0
×
Оценили проект
×
Авторизация
Для того чтобы оценивать проекты, вам нужно войти на сайт
Другие проекты
Все проекты
Санузел
Концепция для бренда косметики
Ландшафтный проект
FREELANCE.RU
Toggle navigation
Нанять фрилансера
Заказчику
Найти по специализации
Найти по услугам
Провести конкурс
Разместить задание
Виртуальный HR
Другое
Найти работу
Фрилансеру
Найти задание
Присоединиться к команде
Участвовать в конкурсе
Предложить услугу
Другое
Возможности
Для заказчика
Для фрилансера
Вход
Разместить задание
▲