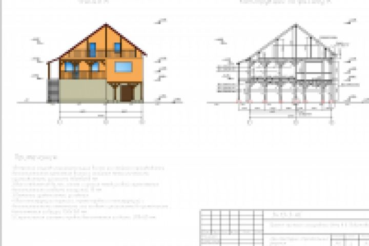
Проект частного дома
Для полной функциональности этого сайта необходимо включить JavaScript.
Санкт-Петербург
Александр Жихарев
zhihar42
Рейтинг: 224
не верифицирован
Всего отзывов:
7
0
Выполнил заданий:
7
Нейросаммари
Активность:
Работ в портфолио:
59
Типовых услуг:
0
Работ на продажу:
0
Зарегистрирован:
19.03.2015
Был на сайте:
2024-11-28 в 21:36
+79089595224
inbox
zhihar90@mail.ru
Предложить работу
Добавить в избранное
Добавить рекомендацию
Пожаловаться
Инженерия
47
0
Проект частного дома
Используемые навыки:
Проектирование объектов
Описание
Решение
Результат
Соавторы
Презентация проекта
Примеры реализации
Описание
Презентация проекта
Оценили проект:
0
×
Оценили проект
×
Авторизация
Для того чтобы оценивать проекты, вам нужно войти на сайт
Другие проекты
Все проекты
Схема вентиляции дома на 6 квартир
Визуализация гостиной/ моделирование мебели
Работа 3327872
FREELANCE.RU
Toggle navigation
Нанять фрилансера
Заказчику
Каталог фрилансеров
Каталог студий
Каталог услуг
Каталог работ
Виртуальный HR
Умный поиск
Провести конкурс
Разместить задание
Найти работу
Фрилансеру
Найти задание
Присоединиться к команде
Участвовать в конкурсе
Предложить услугу
Вход
Разместить задание
▲