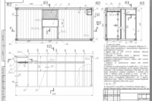
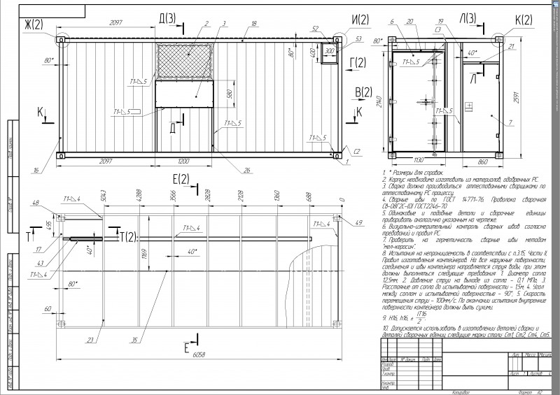
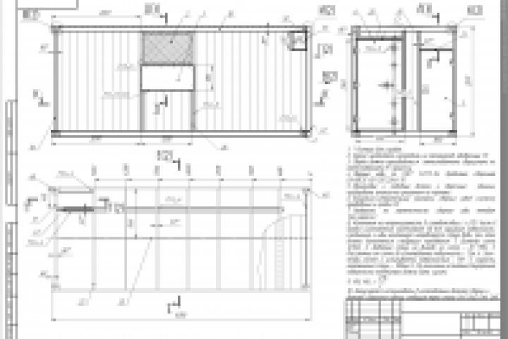
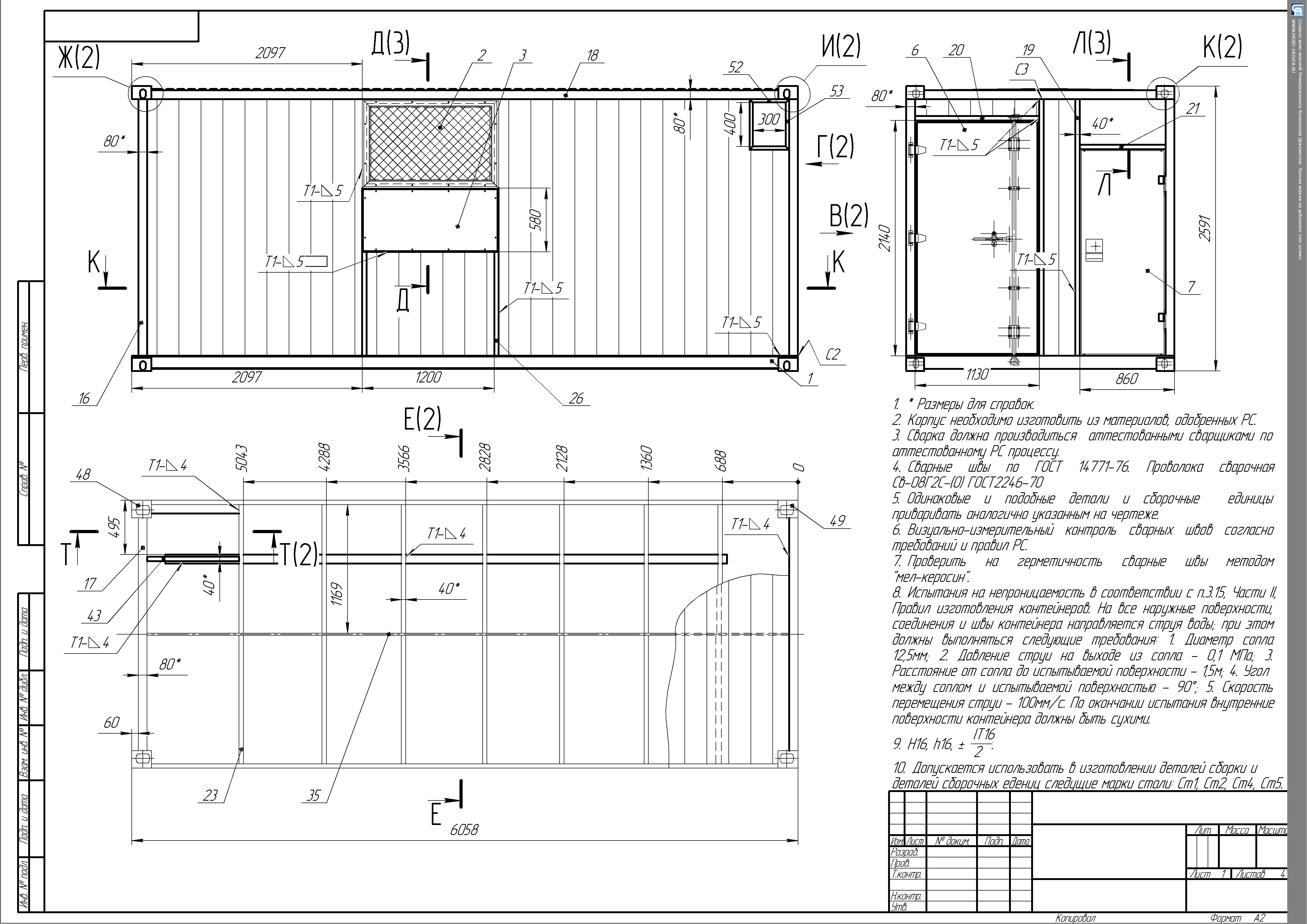
Контейнер под специализированное оборудование
Для полной функциональности этого сайта необходимо включить JavaScript.
Санкт-Петербург
44 года
На сайте с: 29.10.2015
Александр Колосов
oborotovo
Рейтинг: 80
не верифицирован
Всего отзывов:
1
0
Нейросаммари
Работ в портфолио:
5
Типовых услуг:
0
Работ на продажу:
0
Был на сайте:
2025-03-31 в 13:00
inbox
whatsapp
oborotovo@gmail.com
Предложить работу
Добавить в избранное
Добавить рекомендацию
Пожаловаться
Инженерия
86
0
Контейнер под специализированное оборудование
Используемые навыки:
Машиностроение
Описание
Решение
Результат
Соавторы
Презентация проекта
Примеры реализации
Описание
Презентация проекта
Оценили проект:
0
×
Оценили проект
×
Авторизация
Для того чтобы оценивать проекты, вам нужно войти на сайт
Другие проекты
Все проекты
Здание 24м х 60м. Расчет на прочность. Разделы КМ и КМД
Проект здания в промышленной зоне.
Проект ангара с кран-балкой из металлоконструкций
FREELANCE.RU
Toggle navigation
Нанять фрилансера
Заказчику
Найти по специализации
Найти по услугам
Провести конкурс
Разместить задание
Другое
Найти работу
Фрилансеру
Найти задание
Присоединиться к команде
Участвовать в конкурсе
Другое
Возможности
Для заказчика
Для фрилансера
Вход
Разместить задание
▲