Мастерство не пропьеш

Виктор Шолохов elekproekt

Рейтинг: 396
не верифицирован
Всего отзывов: 0
  • Активность:
  • Работ в портфолио: 16
  • Типовых услуг: 0
  • Работ на продажу: 0
  • Возраст: 64 года
  • Зарегистрирован: 04.01.2017
Был на сайте:

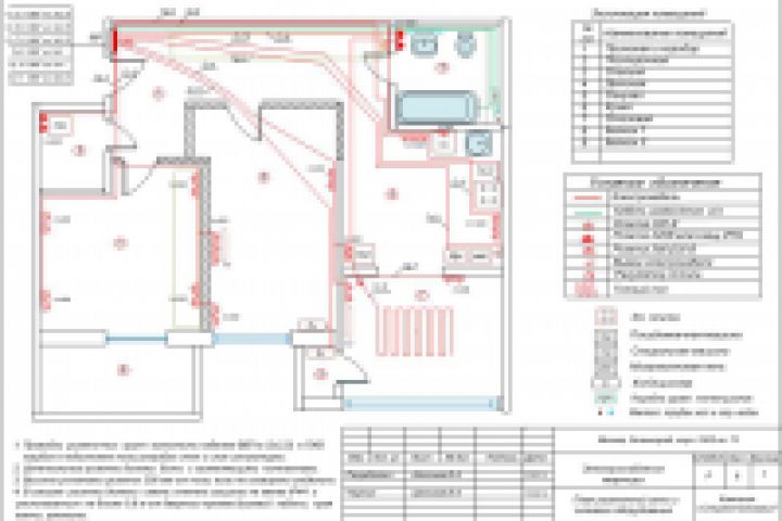
проект электроснабжения квартиры

Используемые навыки:

Описание

Проектирование электроснабжения квартир, жилых домов, офисов, нежилых помещений. Индивидуальные проекты электроснабжения . Разработка и согласование. Составление схем электроснабжения,однолинейных эл. схем. Исполнительная документация по электроснабжению. Проектирование ОПС и слаботочных систем. Самые современные технологии управления потребляемой мощностью. Покупки дополнительной мощности не потребуется. Проведение электроизмерений с составлением Тех. Отчета. Электромонтажные работы

Ссылки на примеры реализации

 gdeprofi.ru/Profile/EditGallery

Презентация проекта

pic3046313.jpg

Оценили проект:

0