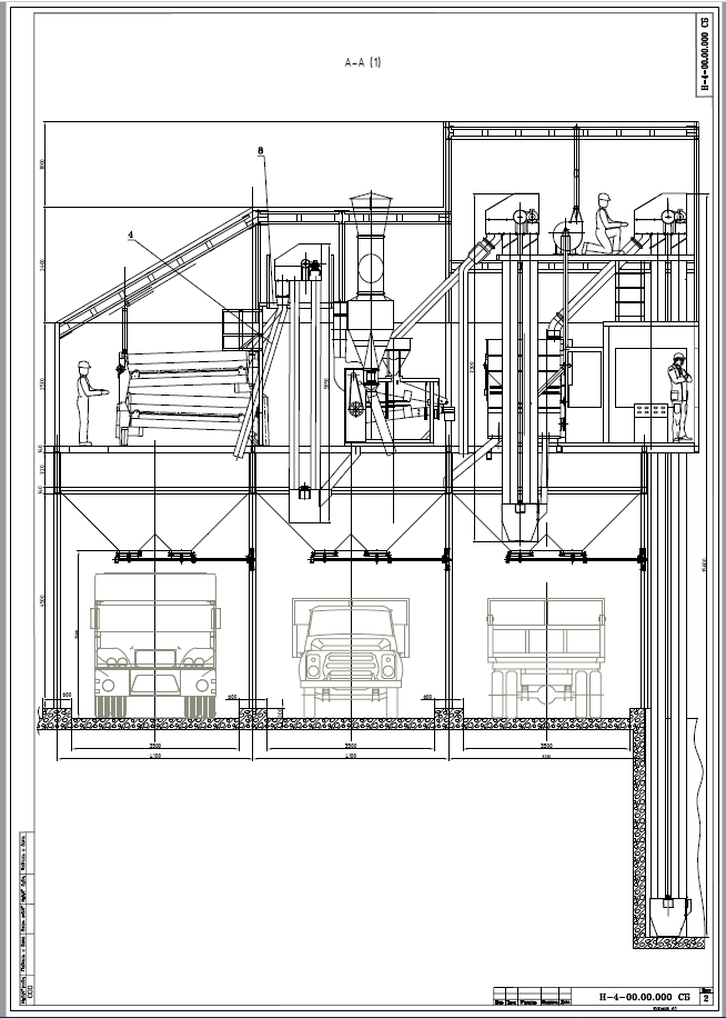
ЗАВ-50 (Л.2)
Для полной функциональности этого сайта необходимо включить JavaScript.
Ростов-на-Дону
На сайте с: 02.12.2018
Михаил Наумов
rusengineer
Рейтинг: 78
не верифицирован
Всего отзывов:
0
Работ в портфолио:
38
Типовых услуг:
0
Работ на продажу:
0
Был на сайте:
2024-12-28 в 12:36
+79034016066
inbox
telegram
Предложить работу
Добавить в избранное
Добавить рекомендацию
Пожаловаться
Инженерия
20
0
ЗАВ-50 (Л.2)
Используемые навыки:
Чертежи/Схемы
Описание
Решение
Результат
Соавторы
Презентация проекта
Примеры реализации
Описание
Презентация проекта
Оценили проект:
0
×
Оценили проект
×
Авторизация
Для того чтобы оценивать проекты, вам нужно войти на сайт
Другие проекты
Все проекты
Механизм формовки и отрезки (Л.1)
Конвейер ленточный наклонный (общий вид)
КТП (л.2)
FREELANCE.RU
Toggle navigation
Нанять фрилансера
Заказчику
Найти по специализации
Найти по услугам
Провести конкурс
Разместить задание
Другое
Найти работу
Фрилансеру
Найти задание
Присоединиться к команде
Участвовать в конкурсе
Другое
Возможности
Для заказчика
Для фрилансера
Вход
Разместить задание
▲