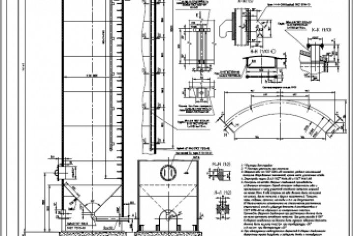
Ёмкость 50м куб.
Для полной функциональности этого сайта необходимо включить JavaScript.
Ростов-на-Дону
На сайте с: 02.12.2018
Михаил Наумов
rusengineer
Рейтинг: 78
не верифицирован
Всего отзывов:
0
Работ в портфолио:
38
Типовых услуг:
0
Работ на продажу:
0
Был на сайте:
2024-12-28 в 12:36
+79034016066
inbox
telegram
Предложить работу
Добавить в избранное
Добавить рекомендацию
Пожаловаться
Инженерия
10
0
Ёмкость 50м куб.
Используемые навыки:
Чертежи/Схемы
Описание
Решение
Результат
Соавторы
Презентация проекта
Примеры реализации
Описание
Презентация проекта
Оценили проект:
0
×
Оценили проект
×
Авторизация
Для того чтобы оценивать проекты, вам нужно войти на сайт
Другие проекты
Все проекты
Затвор реечный с электроприводом
ЗАВ-50 (Л.1)
Опора авторазгрузки
FREELANCE.RU
Toggle navigation
Нанять фрилансера
Заказчику
Найти по специализации
Найти по услугам
Провести конкурс
Разместить задание
Другое
Найти работу
Фрилансеру
Найти задание
Присоединиться к команде
Участвовать в конкурсе
Другое
Возможности
Для заказчика
Для фрилансера
Вход
Разместить задание
▲