Перепланировка квартиры
Для полной функциональности этого сайта необходимо включить JavaScript.
Москва
На сайте с: 02.10.2012
Света Васильева
Mad__Hatter
Рейтинг: 217
не верифицирован
Всего отзывов:
0
Нейросаммари
Работ в портфолио:
58
Типовых услуг:
0
Работ на продажу:
0
Была на сайте:
2025-10-02 в 15:06
inbox
architekvs@gmail.com
www.vsvlab.com
Предложить работу
Добавить в избранное
Добавить рекомендацию
Пожаловаться
Инженерия
24
0
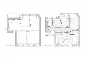
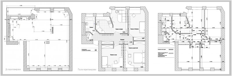
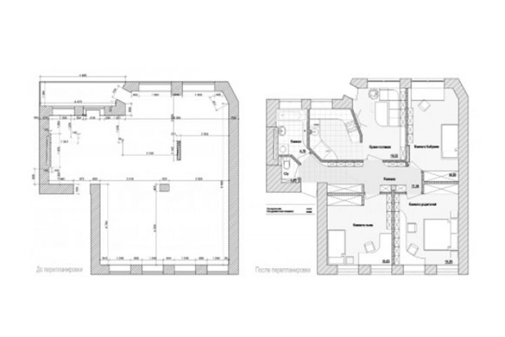
Перепланировка квартиры
Используемые навыки:
Чертежи/Схемы
Описание
Решение
Результат
Соавторы
Презентация проекта
Примеры реализации
Описание
Презентация проекта
Оценили проект:
0
×
Оценили проект
×
Авторизация
Для того чтобы оценивать проекты, вам нужно войти на сайт
Другие проекты
Все проекты
Благоустройство общественных зон коттеджного поселка
Работа 3397807
Концепция развития лесопарка
FREELANCE.RU
Toggle navigation
Нанять фрилансера
Заказчику
Найти по специализации
Найти по услугам
Провести конкурс
Разместить задание
Виртуальный HR
Другое
Найти работу
Фрилансеру
Найти задание
Присоединиться к команде
Участвовать в конкурсе
Предложить услугу
Другое
Возможности
Для заказчика
Для фрилансера
Вход
Разместить задание
▲