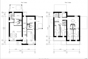
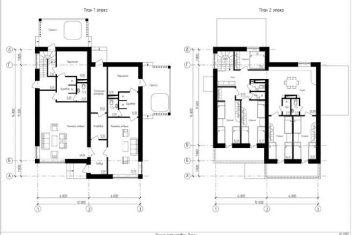
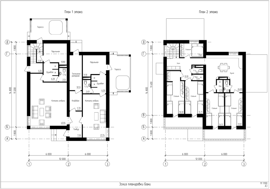
Планировка гостевого дома
Для полной функциональности этого сайта необходимо включить JavaScript.
Москва
На сайте с: 02.10.2012
Света Васильева
Mad__Hatter
Рейтинг: 217
не верифицирован
Всего отзывов:
0
Нейросаммари
Работ в портфолио:
58
Типовых услуг:
0
Работ на продажу:
0
Была на сайте:
2025-10-02 в 15:06
inbox
architekvs@gmail.com
www.vsvlab.com
Предложить работу
Добавить в избранное
Добавить рекомендацию
Пожаловаться
Инженерия
22
0
Планировка гостевого дома
Используемые навыки:
Чертежи/Схемы
Описание
Решение
Результат
Соавторы
Презентация проекта
Примеры реализации
Описание
Презентация проекта
Оценили проект:
0
×
Оценили проект
×
Авторизация
Для того чтобы оценивать проекты, вам нужно войти на сайт
Другие проекты
Все проекты
Концепция застройки жилого квартала в Белгороде
Схема генплана острова
Торгово-офисные здания
FREELANCE.RU
Toggle navigation
Нанять фрилансера
Заказчику
Найти по специализации
Найти по услугам
Провести конкурс
Разместить задание
Виртуальный HR
Другое
Найти работу
Фрилансеру
Найти задание
Присоединиться к команде
Участвовать в конкурсе
Предложить услугу
Другое
Возможности
Для заказчика
Для фрилансера
Вход
Разместить задание
▲