Коммерческие интерьеры для успешного бизнеса: офисы, HoReCa.

Ольга Алексеева TexnologDiz

Top 10
Рейтинг: 8 027
Паспорт верифицирован
Всего отзывов: 13 0
Выполнила заданий: 6
  • Активность:
  • Работ в портфолио: 289
  • Типовых услуг: 1
  • Работ на продажу: 0
  • Зарегистрирован: 06.06.2012
  • Юридический статус:ИП
Была на сайте:

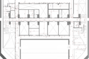
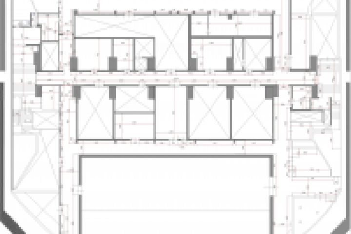
Обмеры объекта площадью 7500м2.

Используемые навыки:

Описание

Обмеры 4 этажей здания площадью 7500м2. Работа выполнена в программе AutoCad , срок 2 недели, включая время на обмеры и построение модели в программе.

Презентация проекта

pic2080172.jpg

Оценили проект:

0