Рейтинг: 52
не верифицирован
Всего отзывов: 0
  • Работ в портфолио: 2
  • Типовых услуг: 0
  • Работ на продажу: 0
Был на сайте:

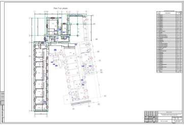
Разработка проектно-сметной документации для кап.ремонта

Используемые навыки:

Описание

Выполнена разработка проектно-сметной документации для кап.ремонта.

Общая площадь – 1010,4 м2
Площадь земельного участка – 1674 м2
Количество этажей – нежилое здание, переменной этажности (1-3 этажа)

Ссылку на разделы прилагаю.

Ссылки на примеры реализации

 disk.yandex.ru/d/7cM1j9dXqDVFZg

Презентация проекта

pic4617992.jpg

Оценили проект:

0

Другие проекты Все проекты