Рейтинг: 195
Паспорт верифицирован
Всего отзывов: 0
  • Работ в портфолио: 16
  • Типовых услуг: 0
  • Работ на продажу: 0
  • Зарегистрирован: 03.04.2024
Был на сайте:

Дизайн летней веранды

Используемые навыки:

Описание

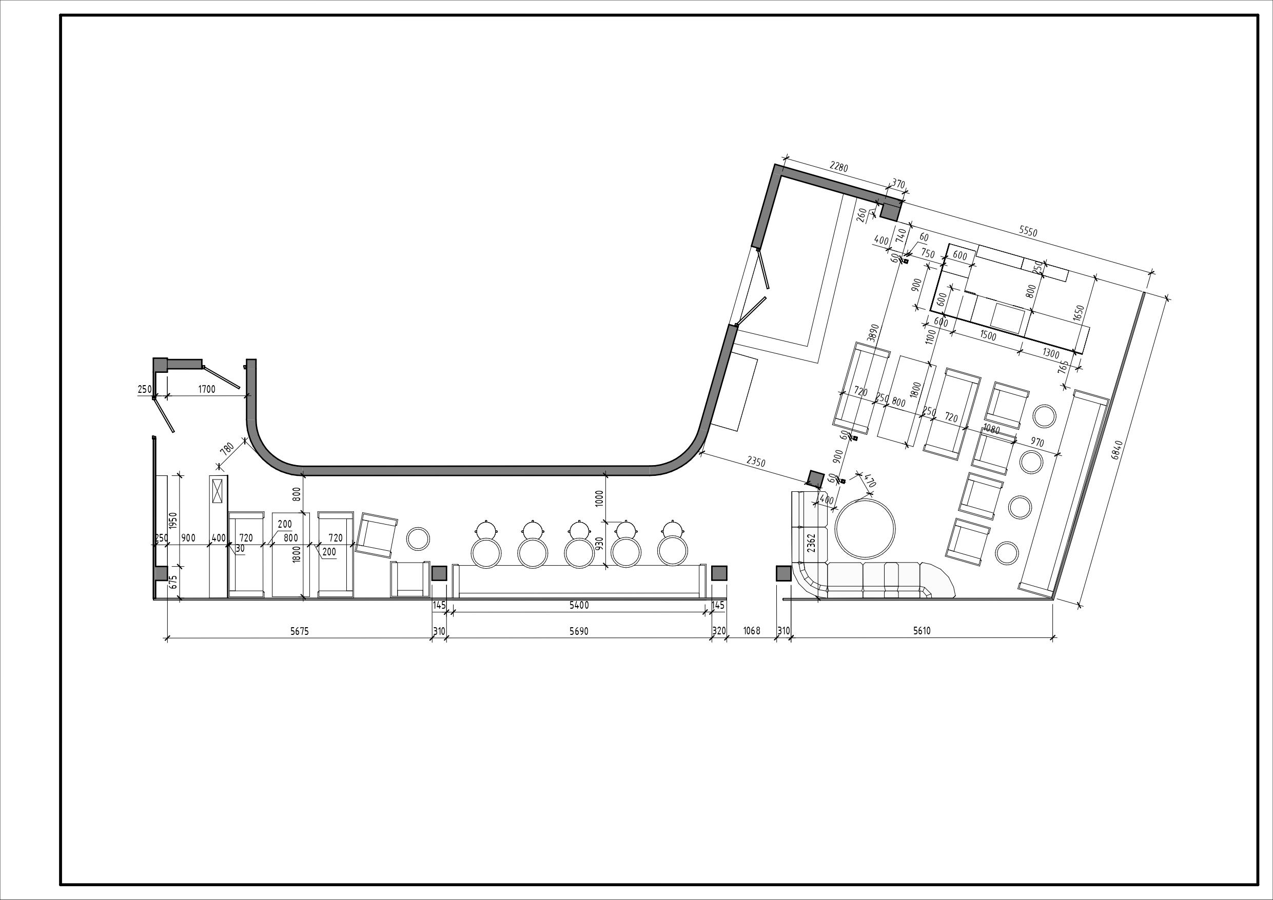
Данная концепция летней веранды, ключевым элементом которой стало универсальное сочетание дизайнерской мебели с применением разных источников света, эффектно контрастирует с существующим пространством внутри зала. В рамках данного проекта разработаны два варианта барной станции.

В рамках данного проекта выполнено:
1. ПЛАНИРОВОЧНАЯ ЧАСТЬ:
- разработка технического задания,
- выезд и замер объекта,
- обмерный план помещения,
- план расстановки мебели,
2. ГРАФИЧЕСКАЯ ЧАСТЬ:
- план точек визуализации,
- 3D визуализации.

* Планировка выполнялась с учетом уже имеющейся у заказчика мебели

Презентация проекта

pic4612533.jpg
планировка.jpg

Оценили проект:

0