архитектор, художник

Светлана Савкина light1250

Рейтинг: 49
не верифицирован
Всего отзывов: 0
  • Активность:
  • Работ в портфолио: 9
  • Типовых услуг: 1
  • Работ на продажу: 0
  • Зарегистрирован: 17.05.2023
Был на сайте:

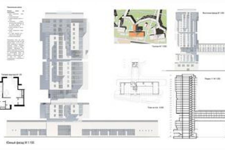
Жилой дом повышенной этажности

Описание

Разработка проекта жилого дома повышенной этажности

Презентация проекта

pic4442559.jpg

Оценили проект:

0