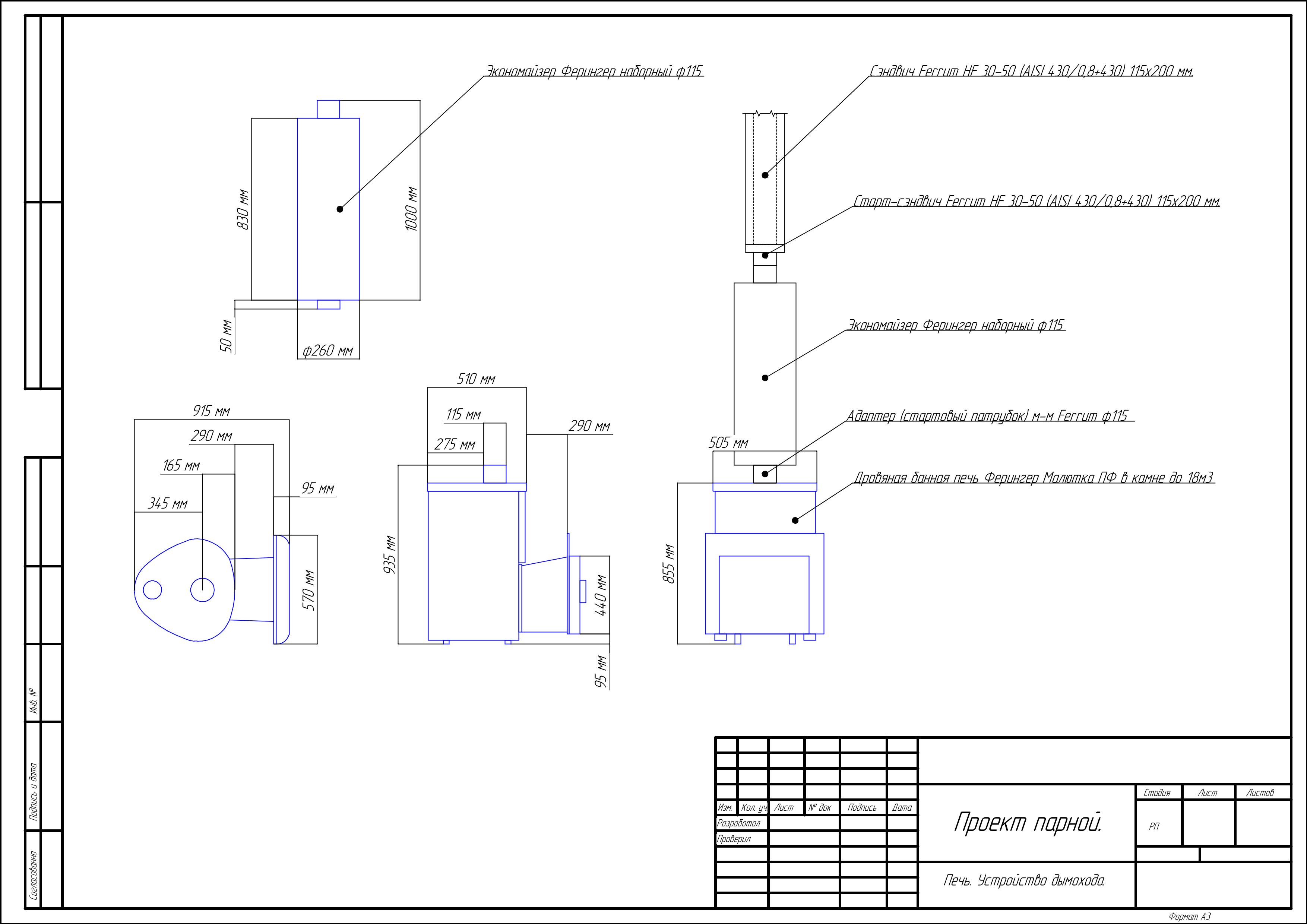
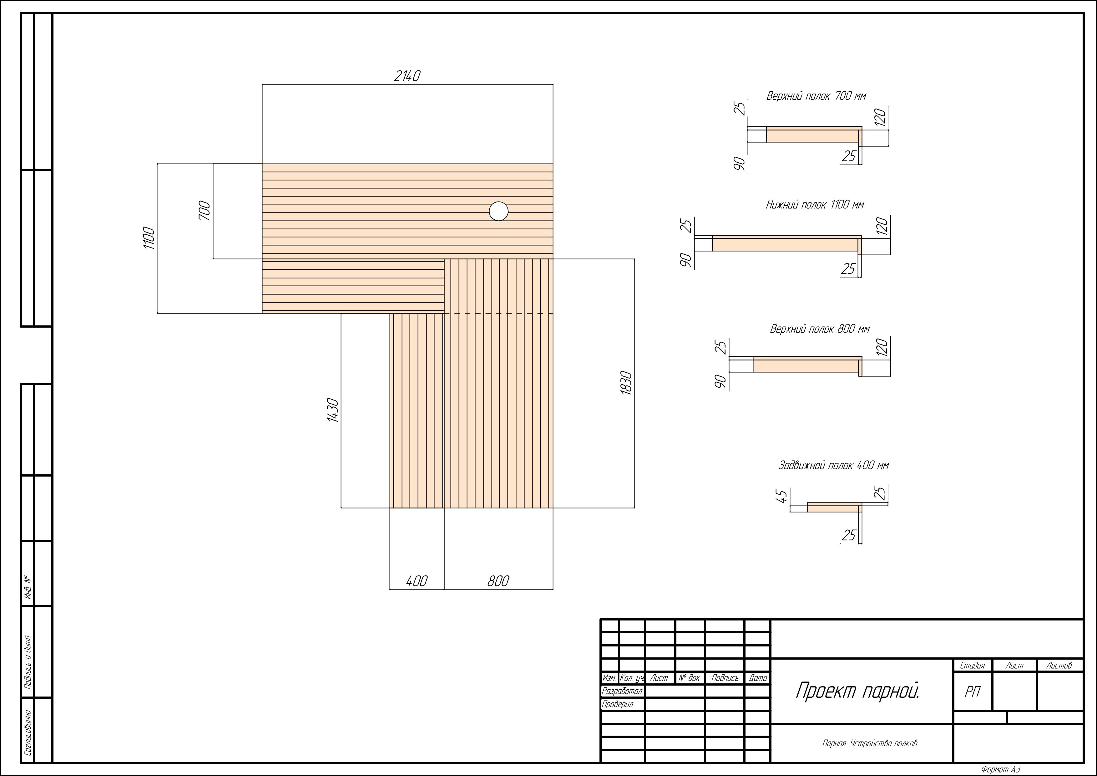
Конструктив и рабочие чертежи, понятные строителям.

Антон Дьяченко Dyachenkotoxa

Рейтинг: 62
Верифицирован через Сбер ID
Всего отзывов: 0
  • Работ в портфолио: 2
  • Типовых услуг: 0
  • Работ на продажу: 0
  • Возраст: 38 лет
  • Стаж работы: 14 лет
  • Зарегистрирован: 26.04.2026
  • Образование: Среднее профессиональное
  • Юридический статус:Самозанятый
  • Стоимость услуг (руб): 1 250 за час 250 000 за месяц
Был на сайте:

Проект парной

Описание

Была поставлена задача сделать проект таким образом, чтобы заказчик мог самостоятельно выполнить отделку парной.

Решение

Было принято решение добавить 3D эскизы ключевых узлов для наглядности.

Результат

С заказчиком проведена консультация. Также достигнута договоренность о курировании проекта: выезды на объект, общение по телефону, почте, мессенджерам, координация между заказчиком и строителями.

Презентация проекта

Теодор проект_страница_7.jpg
Теодор проект_страница_8.jpg
Теодор проект_страница_9.jpg
Теодор проект_страница_10.jpg
Теодор проект_страница_11.jpg
Теодор проект_страница_12.jpg
Теодор проект_страница_13.jpg
Теодор проект_страница_14.jpg
Теодор проект_страница_15.jpg
Теодор проект_страница_16.jpg

Оценили проект:

0