Фотореализм как стандарт. Дизайн как функция. 3D как искусство.

Андрей Пашкин ktea

Рейтинг: 768
Верифицирован через Сбер ID
Всего отзывов: 7 0
Выполнил заданий: 8
  • Надежность: Использовал: Работал по Безопасной сделке
  • Работ в портфолио: 41
  • Типовых услуг: 0
  • Работ на продажу: 0
  • Возраст: 20 лет
  • Стаж работы: 4 года
  • Зарегистрирован: 04.07.2018
  • Образование: Среднее профессиональное
  • Юридический статус:Самозанятый
  • Стоимость услуг (руб): 500 за час 50 000 за месяц
Был на сайте:

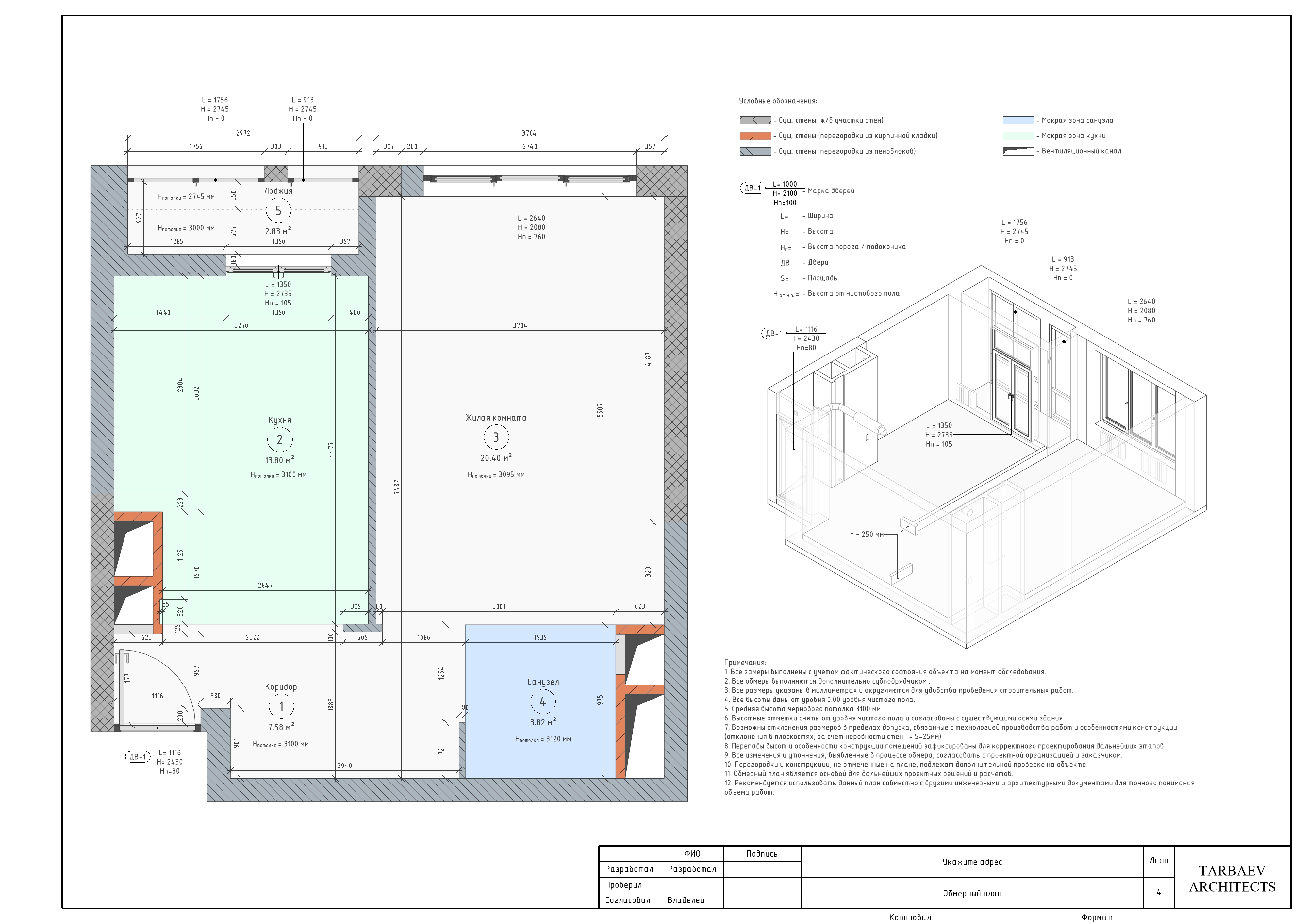
Рабочие чертежи в новостройке 48 м2

Используемые навыки:

Описание

Предоставлена лишь часть чертежей, полноценный альбом не могу загрузить. При необходимости отправлю.

Презентация проекта

ЖК 1147.jpg
ЖК 1147 2.jpg

Оценили проект:

0