Рейтинг: 41
не верифицирован
Всего отзывов: 0
  • Работ в портфолио: 2
  • Типовых услуг: 0
  • Работ на продажу: 0
  • Зарегистрирован: 27.09.2025
  • Образование: Магистратура
Был на сайте:

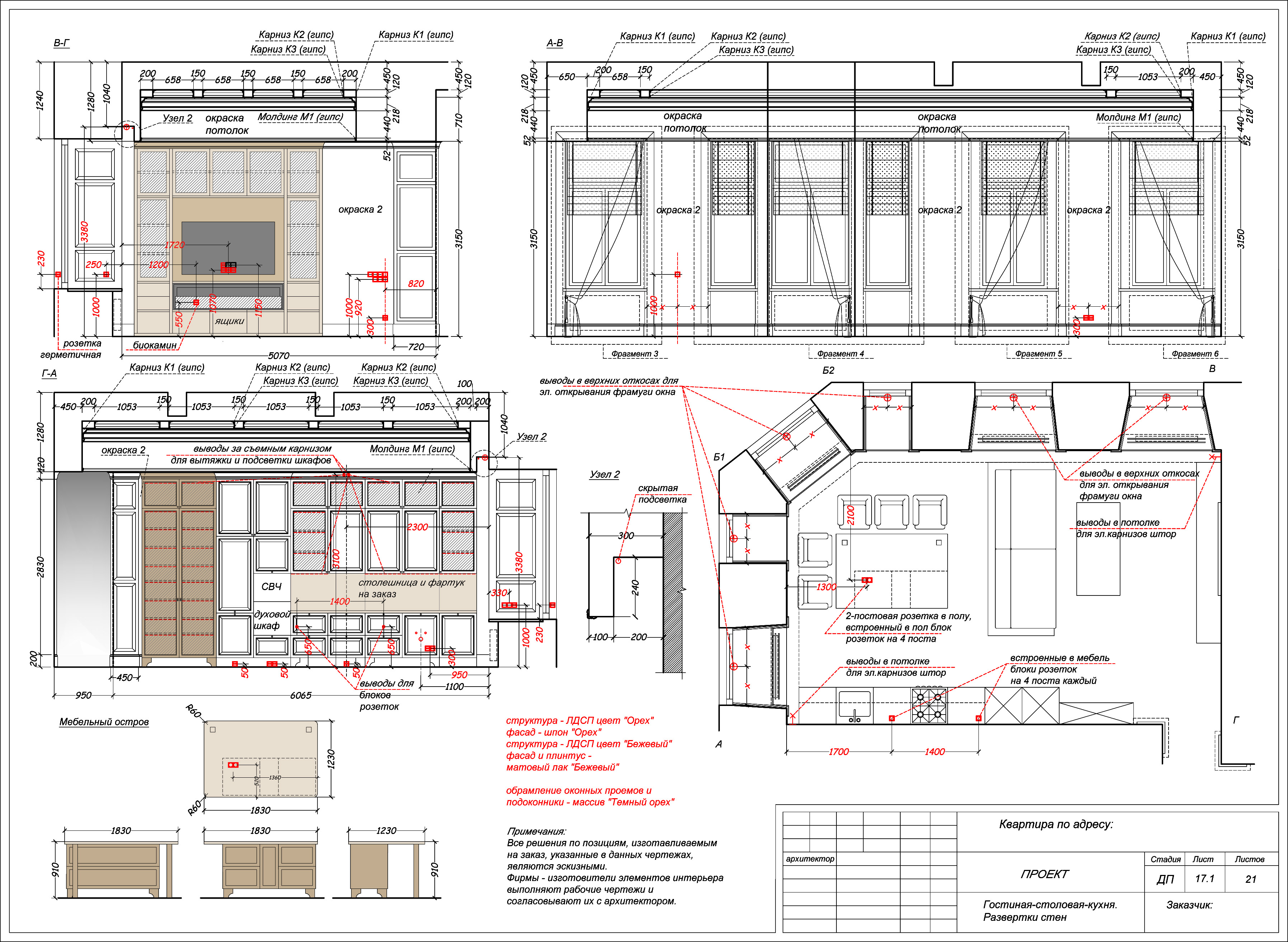
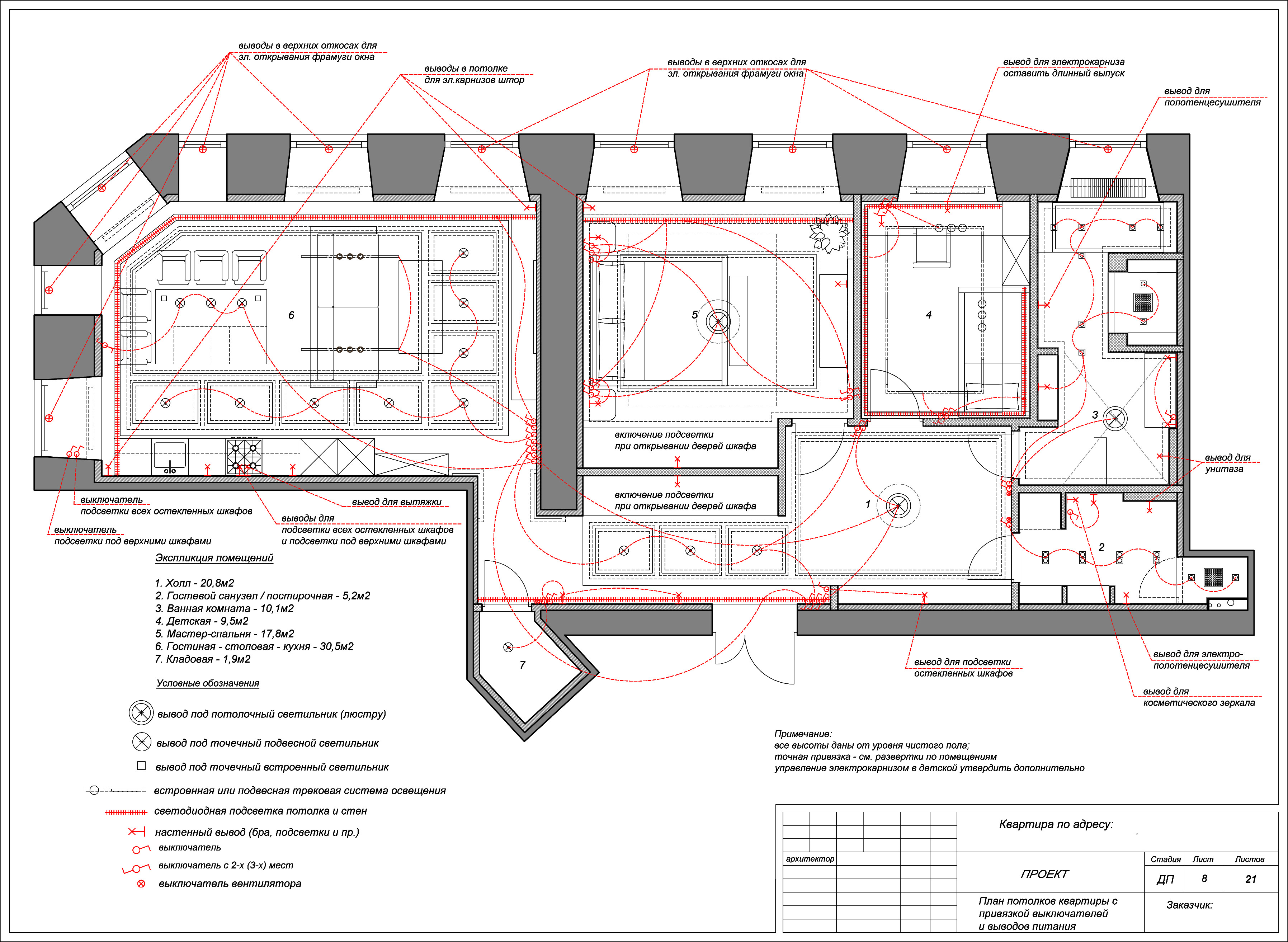
Дизайн-проект

Описание

Задача была перепланировать и реконструировать квартиру в исторической застройке.
Создать актуальный интерьер и комплект рабочих чертежей для его реализации.

Презентация проекта

003.jpg
010.jpg
011.jpg
012.jpg
014.jpg
020.jpg
021.jpg
023.jpg
026.jpg
028.jpg

Оценили проект:

0