Качественное строительство.

Владимир Бузаев sproektomstroy

Рейтинг: 62
Верифицирован через Сбер ID
Всего отзывов: 0
  • Работ в портфолио: 2
  • Типовых услуг: 1
  • Работ на продажу: 0
  • Стаж работы: 4 года
  • Зарегистрирован: 30.01.2024
  • Образование: Бакалавриат
  • Юридический статус:Самозанятый
  • Стоимость услуг (руб): 800 за час 110 000 за месяц
Был на сайте:

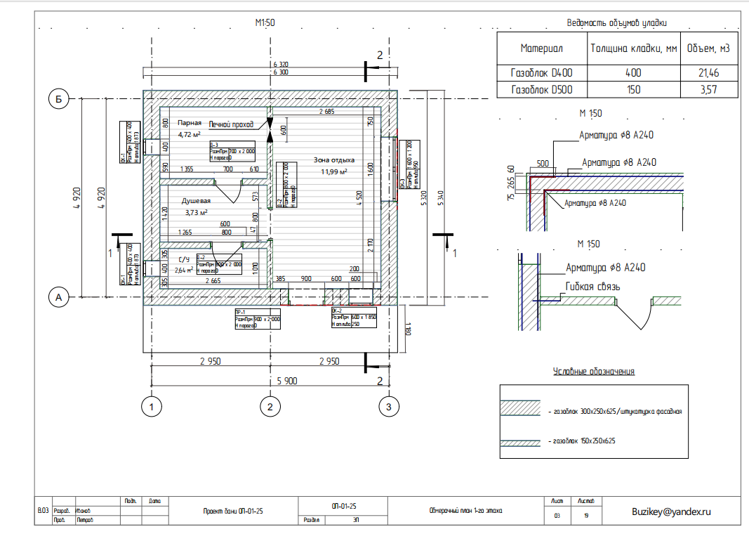
Проект дома-бани из газобетона

Описание

Требовалось выполнить проект дома-бани из газобетона для загородного участка

Решение

Мной был разработан проект с оптимальными решениями в планировки помещений здания, в требуемых габаритах.

Результат

При разработке были использованы типовые решения, что позволило быстро подготовить проектную документацию и сократить расходы заказчика на строительство.

Презентация проекта

Снимок экрана 2026-03-01 004014.png
Снимок экрана 2026-03-01 004141.png
Снимок экрана 2026-03-01 004125.png
Снимок экрана 2026-02-28 221153.png
Снимок экрана 2026-02-28 221220.png
Снимок экрана 2026-02-28 220958.png
Снимок экрана 2026-02-28 221843.png
Снимок экрана 2026-02-28 221333.png
Снимок экрана 2026-02-28 222156.png

Оценили проект:

0