Рейтинг: 193
не верифицирован
Всего отзывов: 0
  • Работ в портфолио: 1
  • Типовых услуг: 0
  • Работ на продажу: 0
  • Возраст: 40 лет
  • Стаж работы: 13 лет
  • Зарегистрирован: 02.12.2016
  • Образование: Cпециалитет
  • Юридический статус:Частное лицо
Был на сайте:

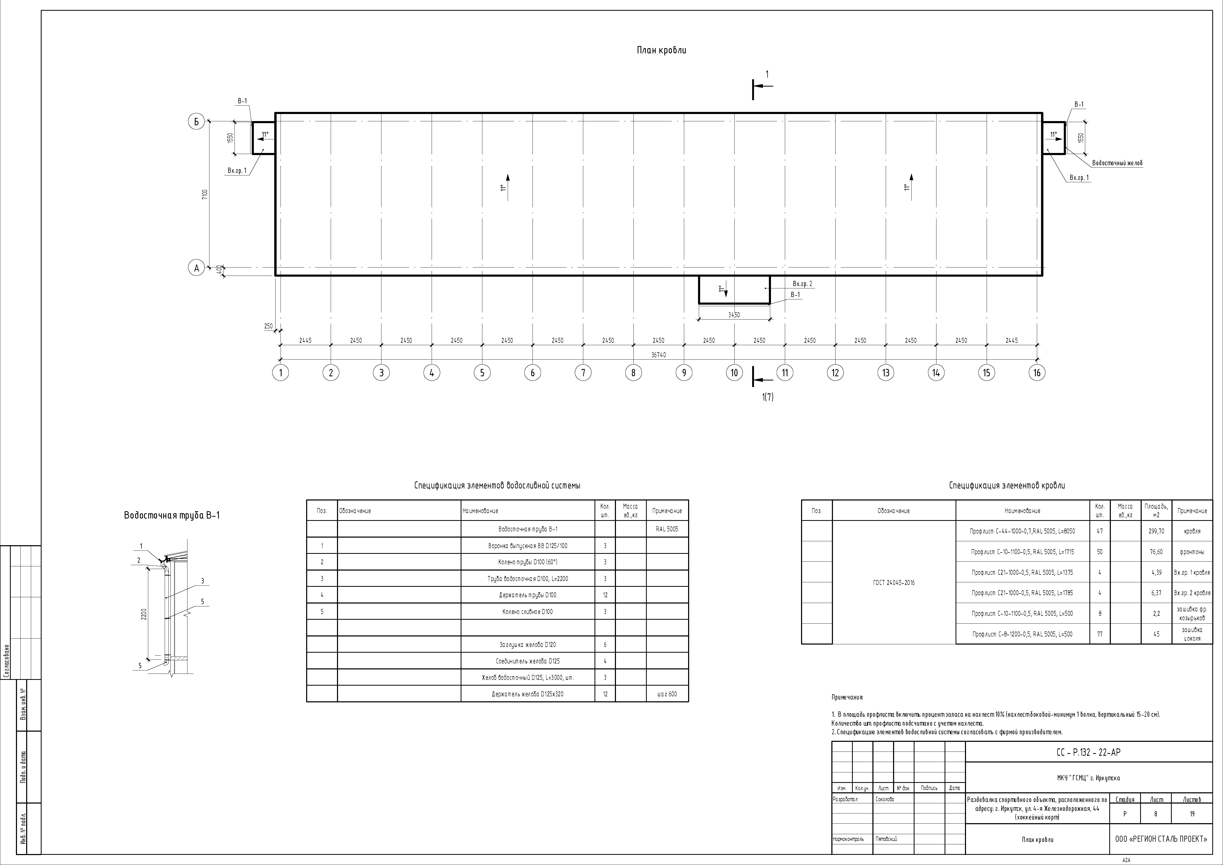
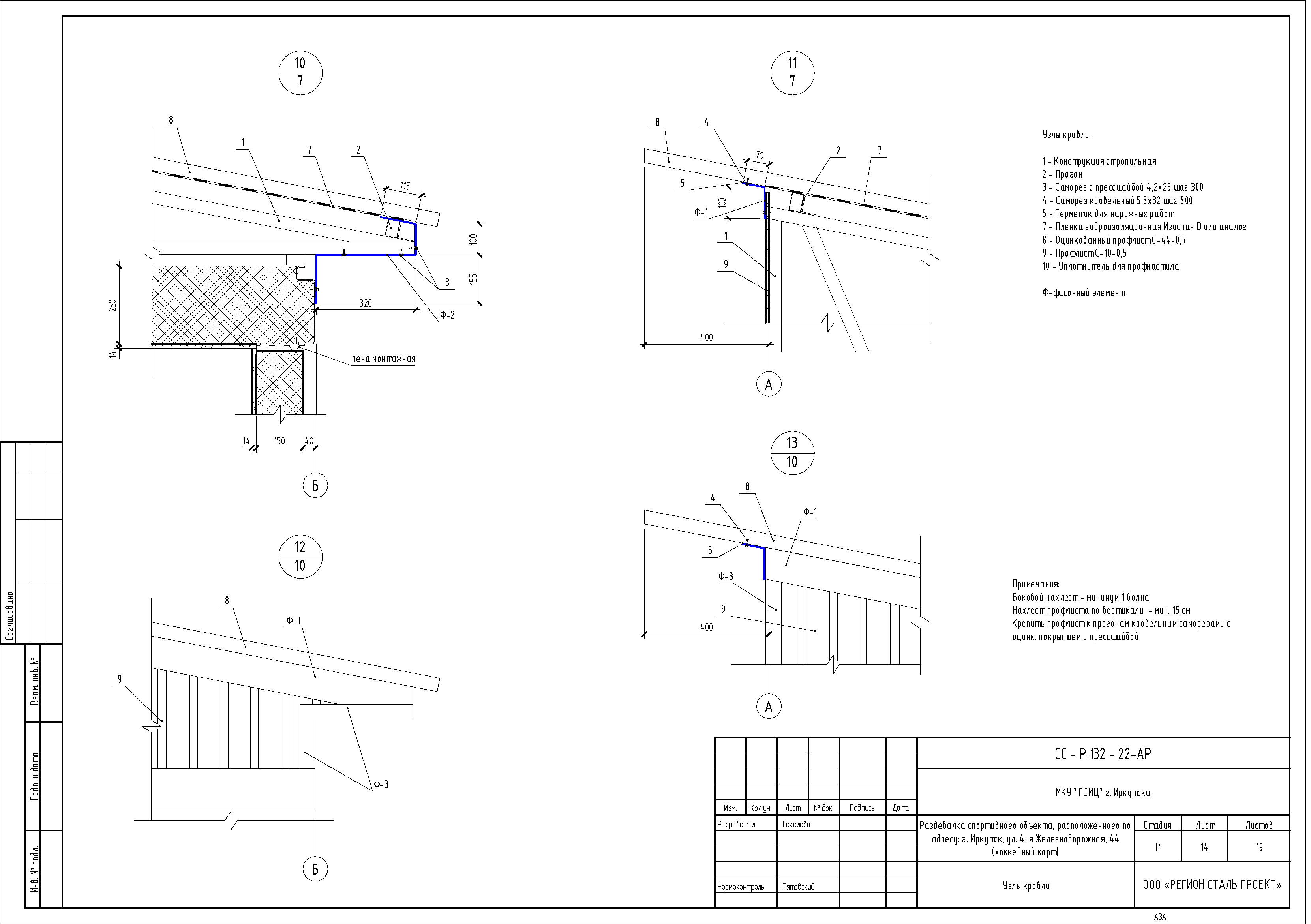
Модульное здание раздевалок спортивного объекта

Описание

Блочно-модульное быстровозводимое одноэтажное здание раздевалок для спортивного объекта в г. Иркутске. В качестве фундамента ростверк на винтовых сваях. Здание не имеет признаков капитального строительства и занимает статус временного.

Презентация проекта

1_Страница_17.jpg
1_Страница_19.jpg
1_Страница_18.jpg
1_Страница_12.jpg
1_Страница_06.jpg
1_Страница_08.jpg
1_Страница_09.jpg
1_Страница_11.jpg
1_Страница_13.jpg
1_Страница_14.jpg

Оценили проект:

0