Рейтинг: 1 403
не верифицирован
Всего отзывов: 0
  • Работ в портфолио: 1
  • Типовых услуг: 0
  • Работ на продажу: 0
  • Стаж работы: 7 лет
  • Зарегистрирован: 24.02.2026
  • Образование: Cпециалитет
  • Стоимость услуг (руб): 900 за месяц
Был на сайте:

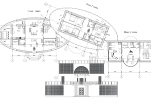
Эскизный проект коттеджа

Описание

Это проект коттеджа никто не заказывал, это первый мой эскизный проект для знакомства со мной в роли архитектора. У меня есть опыт работы инженером строительного направления (7 лет) и желание расширить зону ответственности - включаться в работу над зданием не на этапе конструктивного проектирования, а раньше - выполнять его эскизный и архитектурный проекты.

Решение

Я сделала проект 3-этажного кирпичного коттеджа, в котором могла бы жить семья из пяти человек (+ одна спальня для гостей). Площадь дома - 632 кв. м (из них площадь террас на втором этаже и на крыше 153,3 кв. м)

Презентация проекта

Коттедж.jpg
Мой коттедж.jpg
Мой коттедж_.jpg
План 1 этажа.jpg
План 2 этажа.jpg
План 3 этажа.jpg
Фрагмент дома 1.jpg
Коттедж. Торец.jpg
Фрагмент дома 2.jpg
Площади.jpg

Оценили проект:

1