Дизайн пространства создается не для человека, а вокруг него.

Арина Башарова arinabasharova

Рейтинг: 30
не верифицирован
Всего отзывов: 0
  • Работ в портфолио: 4
  • Типовых услуг: 5
  • Работ на продажу: 0
  • Возраст: 23 года
  • Стаж работы: 3 года
  • Зарегистрирован: 19.02.2026
  • Образование: Магистратура
  • Стоимость услуг (руб): 750 за час 120 000 за месяц
Была на сайте:

Проект дизайна интерьера квартиры 65 м2

Описание

В этом проекте основной задачей было создать уютный и комфортный интерьер, а также визуально разделить вытянутое прямоугольное пространство на отдельные функциональные зоны. Помимо этого было важно сделать квартиру легкой для дальнейшей адаптации к семейной жизни.

Решение

Вытянутое пространство с помощью декоративной перегородки и расстановки мебели мы разделили на две основные зоны: кухня - столовая и гостиная.
Задача - адаптировать комнату для легкого изменения ее функции на "детскую" - была выполнена с помощью использования универсального дизайна и планировки. Таким образом, кабинет сможет очень легко превратиться в детскую комнату.

Для достижения ощущения тепла и уюта в качестве основного материала было выбрано дерево — оно присутствует практически в каждом помещении, включая ванную комнату.
Вторым по степени использования материалом стал камень, который контрастирует с мягкостью дерева, несмотря на свою достаточно сдержанную текстуру.

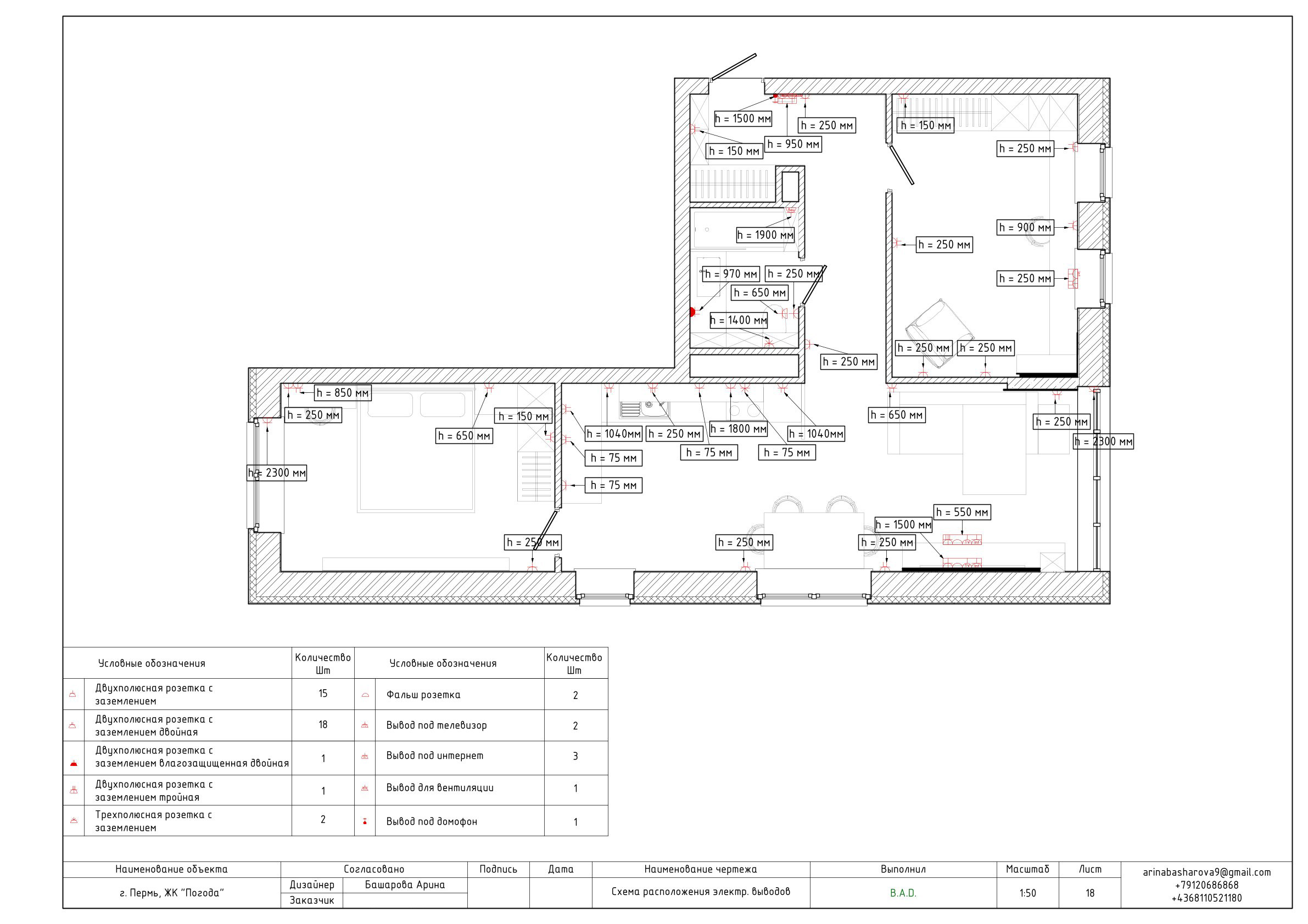
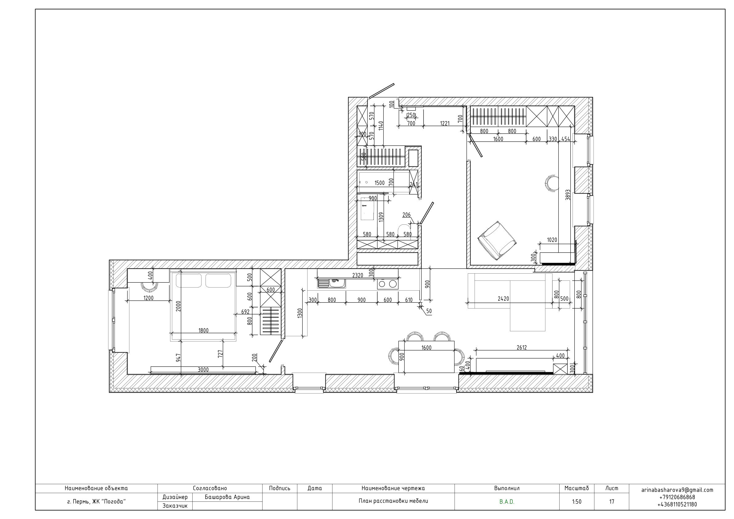
Презентация проекта

12.jpg
7.jpg
7.jpg
6.jpg
111.jpg
22.jpg
17.jpg
18.jpg
22.jpg
0033.jpg

Оценили проект:

0