Рейтинг: 164
Верифицирован через Сбер ID
Всего отзывов: 0
  • Работ в портфолио: 2
  • Типовых услуг: 0
  • Работ на продажу: 0
  • Возраст: 38 лет
  • Стаж работы: 15 лет
  • Зарегистрирован: 22.07.2023
  • Образование: Cпециалитет
Был на сайте:

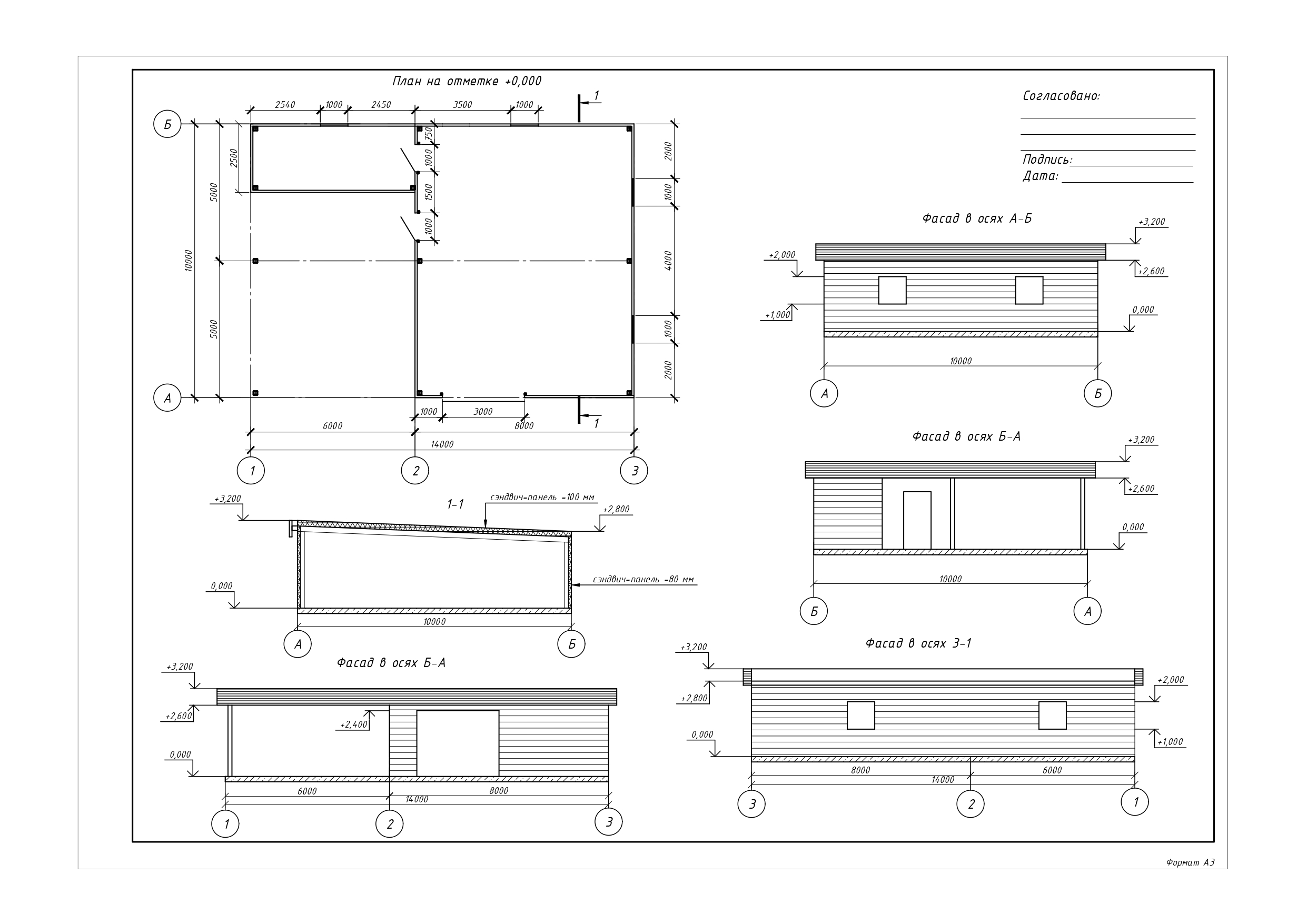
Гараж с навесом и мастерской

Описание

Разработка КМ и КМД, расчеты

Решение

Минимальный расход металла и удобство монтажа

Презентация проекта

гараж_page-0001.jpg
Согласование гараж_page-0001.jpg

Оценили проект:

1