Рейтинг: 376
Паспорт верифицирован
Всего отзывов: 2 0
Выполнила заданий: 3
  • Работ в портфолио: 84
  • Типовых услуг: 4
  • Работ на продажу: 0
  • Возраст: 35 лет
  • Зарегистрирован: 16.09.2015
Была на сайте:

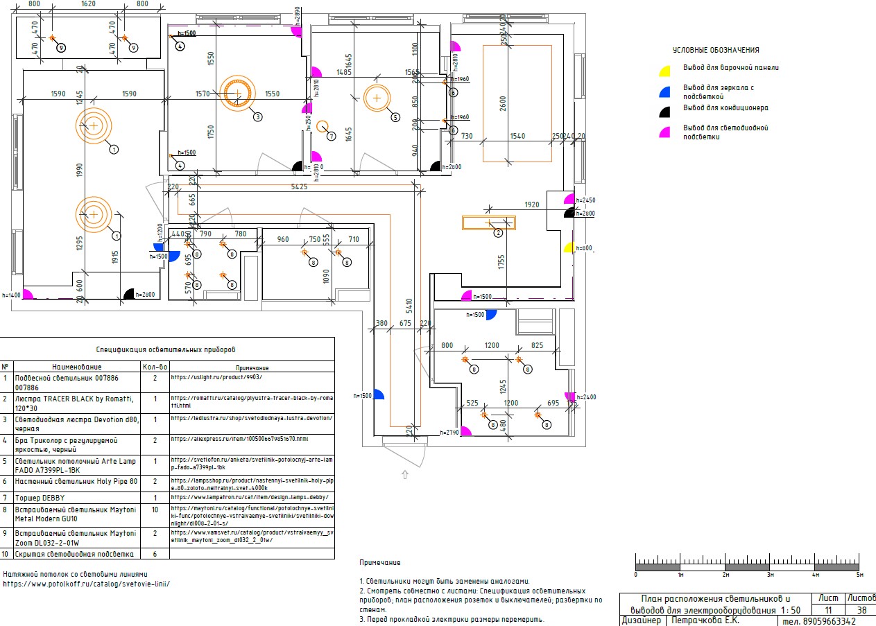
Пример рабочей документации. Электрика.

Описание

План монтажа с типами перегородок, план расположения светильников и выводов для электрооборудования, план расположения розеток и выключателей, спецификация розеток и выключателей, план выключения групп светильников.

Презентация проекта

2.jpg
4.jpg
5.jpg
1.jpg

Оценили проект:

0