Давайте вместе создадим что-то удивительное!✨

Ксюша Фёдорова distressed78

Рейтинг: 52
не верифицирован
Всего отзывов: 0
  • Работ в портфолио: 2
  • Типовых услуг: 0
  • Работ на продажу: 0
  • Стаж работы: 6 лет
  • Зарегистрирован: 14.02.2025
  • Образование: Среднее профессиональное
  • Юридический статус:Частное лицо
  • Стоимость услуг (руб): 1 000 за час 50 000 за месяц
Была на сайте:

Описание

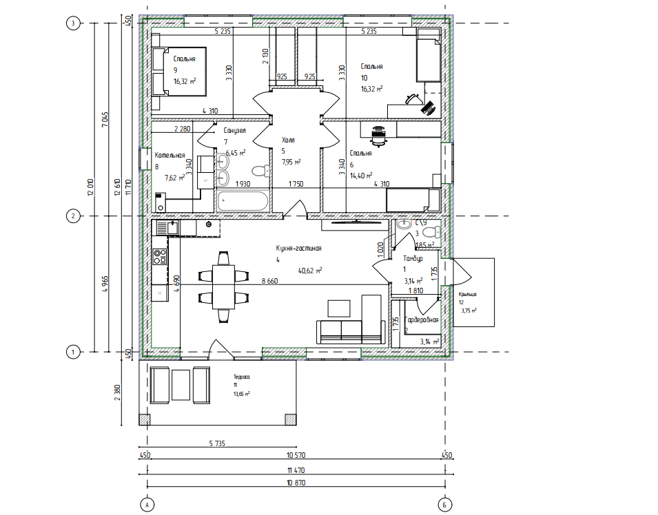
Клиент пришел с минимальным пакетом информации. Была ясна площадь и что должно входить в планировку. Также клиент хотел минимальный пакет чертежей

Решение

Подбирала планировку, разрабатывала Архитектурный раздел + делала расчет фундамента

Результат

Проект был завершен и сдан. Клиент остался доволен

Презентация проекта

Снимок экрана 2025-12-17 142706.png

Оценили проект:

0