YaTTo.design - ремонт без стресса и переделок

Ирина Алексеева YaTTODesign

Рейтинг: 65
не верифицирован
Всего отзывов: 0
  • Работ в портфолио: 5
  • Типовых услуг: 0
  • Работ на продажу: 0
  • Возраст: 25 лет
  • Зарегистрирован: 04.12.2025
Была на сайте:

Полный пакет рабочих чертежей

Описание

Нужен полный пакет рабочих чертежей для моего интерьера, чтобы проект можно было реализовать без ошибок и дополнительных переделок

Решение

Полный пакет чертежей — это комплекс документации, который позволяет строителям, подрядчикам и монтажникам реализовать интерьер точно так, как его задумал дизайнер.
Он включает:
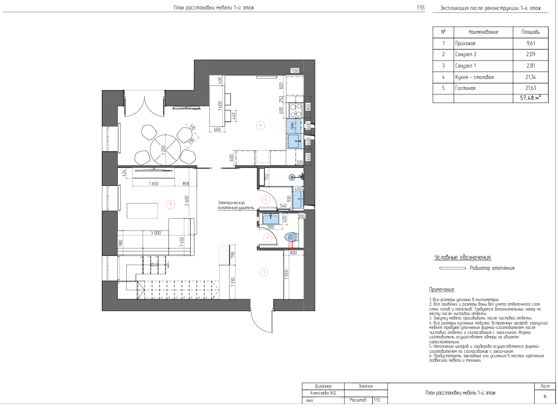
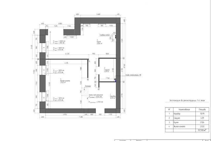
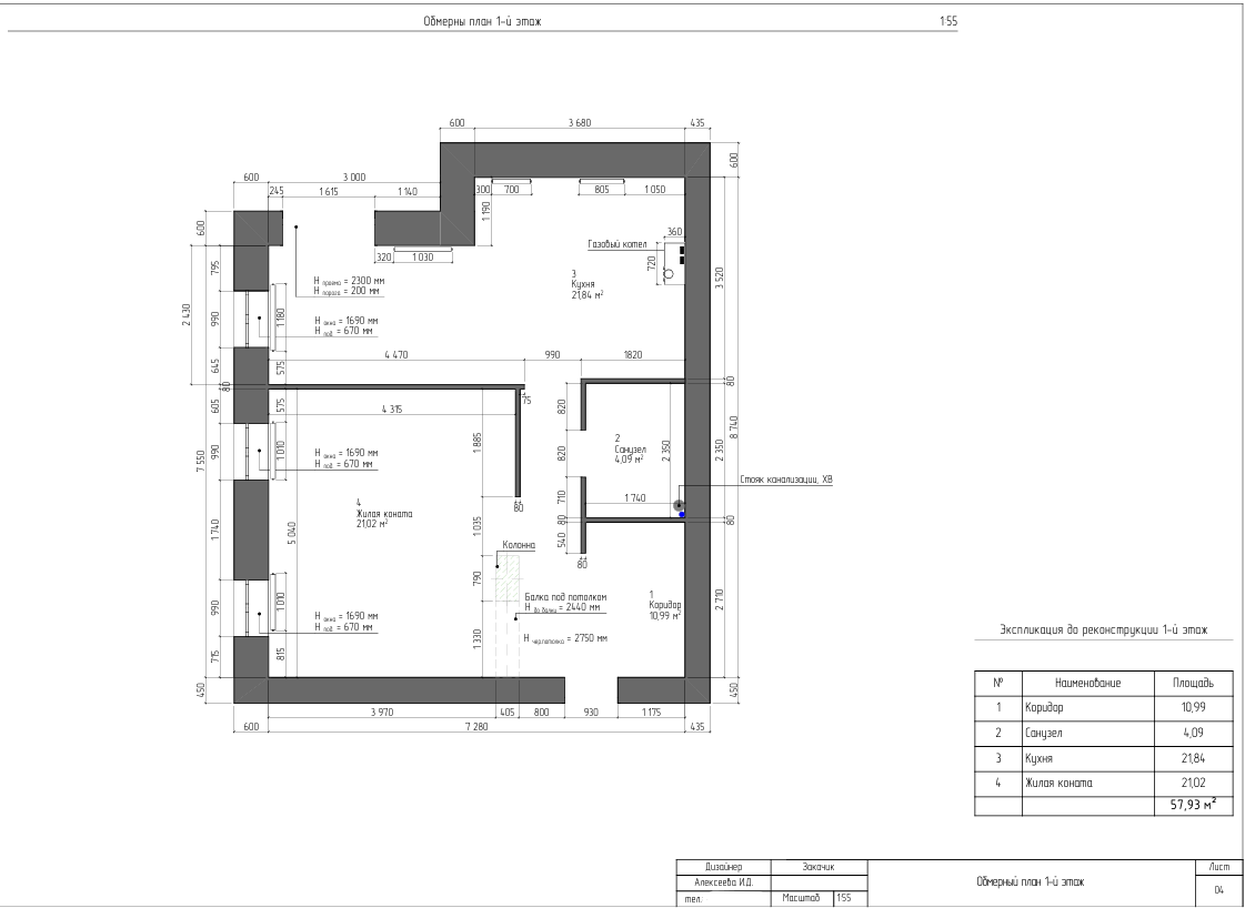
Планировочные решения: план расстановки мебели, зонирование, схемы проходов, привязка дверей и окон.
Развёртки стен: расположение розеток, выключателей, освещения, отделки, декора.
Схемы потолков и пола: уровни, материалы, покрытия.
Чертежи мебели и встроенных конструкций: размеры, материалы, сборка.
Сантехнические и электрические схемы: подключение розеток, точек освещения, сантехники.
Списки материалов и спецификации: все отделочные материалы, мебель, фурнитура, аксессуары с артикулами и поставщиками.
Этот пакет превращает визуальные идеи в практический план реализации, по которому можно работать без ошибок.

Зачем нужен пакет рабочих чертежей
1. Для точной реализации проекта
Коллажи и визуализации показывают стиль, объём и атмосферу, а чертежи дают конкретные размеры, материалы и схемы. Это позволяет строителям работать точно и без догадок.
2. Для экономии времени и бюджета
Ошибки, которые могли бы возникнуть на стройке, выявляются заранее в чертежах.
Снижается риск переделок и дополнительных затрат.
3. Для согласования со всеми участниками
Подрядчики, электрики, сантехники, мебельщики работают по одному источнику данных — чертежам, что исключает недопонимание.
4. Для контроля качества
Каждый элемент интерьера прописан с точными размерами и материалами. Это облегчает проверку качества и соответствие дизайн-проекту.

Результат

Полная техническая документация, готовая для строительства и монтажа.
Снижение ошибок и переделок на стройке.
Чёткая и однозначная коммуникация между дизайнером, заказчиком и подрядчиками.
Точный бюджет и закупочный лист, который минимизирует перерасход.
Финальная основа для реализации интерьера в точности как в визуализациях и коллажах.
По сути, это практическое воплощение всех идей, показанных в концепт-, 2D- и 3D-коллажах, с конкретными размерами, схемами и спецификациями.

Презентация проекта

2025-12-04_15-21-15.png
2025-12-04_15-22-41.png
2025-12-04_15-31-10.png
2025-12-04_15-31-50.png
2025-12-04_15-32-37.png
2025-12-04_15-33-07.png
2025-12-04_15-33-51.png
2025-12-04_15-34-39.png

Оценили проект:

0