Делаю сложное простым

Борис Рогов bobrogov

Рейтинг: 53
не верифицирован
Всего отзывов: 0
  • Работ в портфолио: 3
  • Типовых услуг: 0
  • Работ на продажу: 0
  • Стаж работы: 44 года
  • Зарегистрирован: 19.06.2017
  • Образование: Cпециалитет
  • Стоимость услуг (руб): 500 за час 80 000 за месяц
Был на сайте:

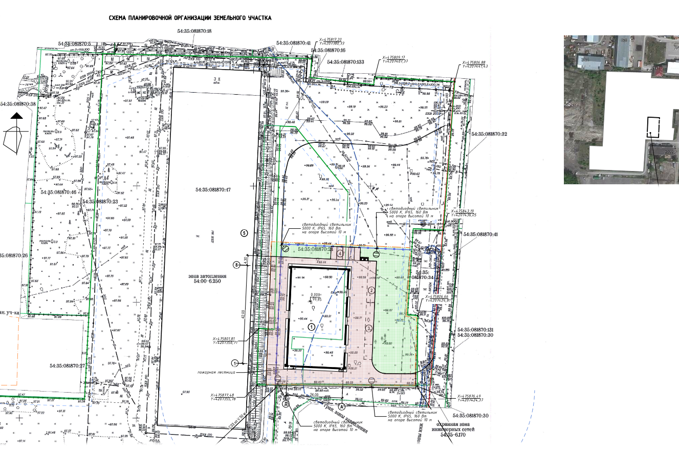
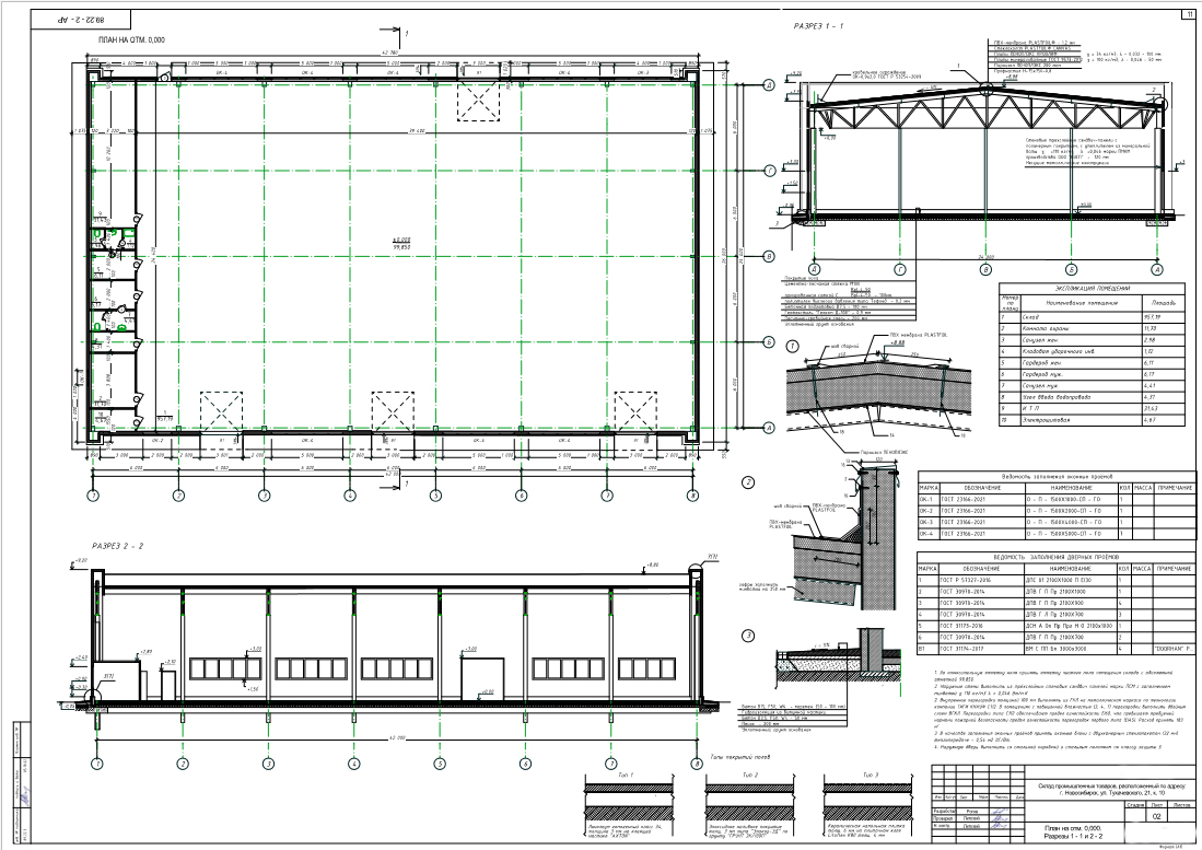
Разделы"Генеральный план (СПОЗУ)" "Архитектурные решения", Склад класса "В" в Новосибирске

Описание

Выполнение разделов проектной документации (СПОЗУ, АР, ОДИ и ПОС) для получения разрешения на строительство и ведения СМР.

Решение

Мною были разработаны все требуемые разделы, проектная документация прошла экспертизу и получила разрешение на строительство в УАСИ. По рабочему проекты выполнялись СМР.

Результат

В 2025 г. склад был сдан в эксплуатацию.

Работа выполнена в соавторстве

проект был выполнен в соавторстве с конструктором и исполнителями всех инженерных разделов (ЭО, ВК, ОВиК, ТХ, ПБ, ООС)

Презентация проекта

Склад СПОЗУ.png
Склад план АР.jpg

Оценили проект:

0