Рейтинг: 165
Паспорт верифицирован
Всего отзывов: 0
  • Работ в портфолио: 50
  • Типовых услуг: 1
  • Работ на продажу: 5
  • Стаж работы: 3 года
  • Тип занятости: Полный фриланс
  • Юридический статус:Самозанятый
Был на сайте:

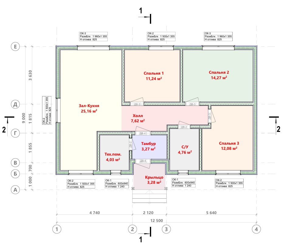
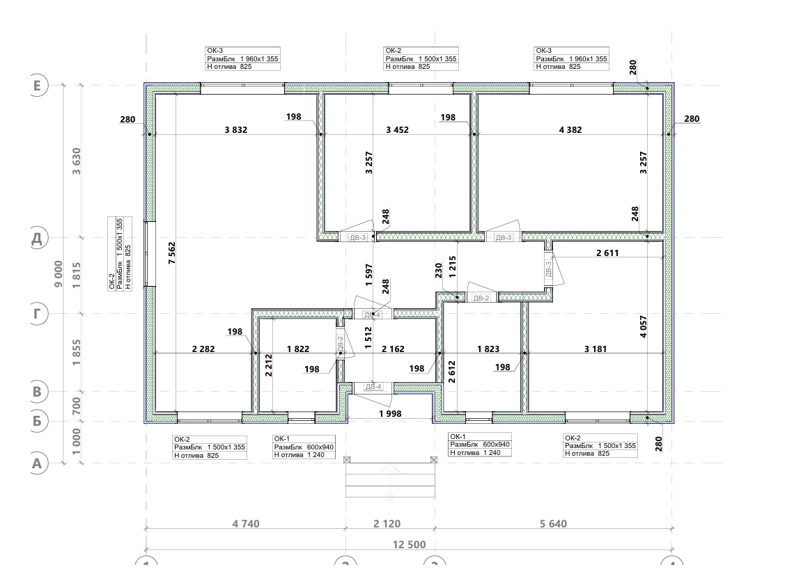
Дом одноэтажный

Описание

Дом одноэтажный, классическом стиле , для круглогодичного пользования. Есть крыльцо под общей с домом
крышей. Крыша двускатная, уклон 25 градуса. Фундамент свайный. Холодный чердак. Размеры в осях 8х12,5.
Минимальная высота 1-го этажа 2,5м., максимальная 2,5м. Чердак в коньке - 1,8м. Для строительства применяется деревянная каркасная технология.

Решение

В ходе работы над проектом были применены: расчёты нагрузок в каркасе; работа в программе Архикад; работа и согласования с заказчиком.

Результат

В результате мы получили готовый объект, который был принят заказчиком и построен.

Презентация проекта

3.jpg
4.jpg
9.jpg
10.jpg

Оценили проект:

0