Некогда не сдаюсь

Даниил Горчаков ttitov509

Рейтинг: 51
не верифицирован
Всего отзывов: 0
  • Работ в портфолио: 1
  • Типовых услуг: 0
  • Работ на продажу: 0
Был на сайте:

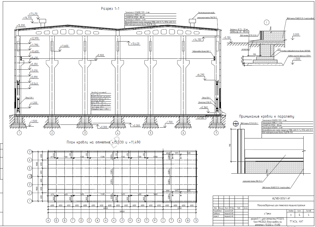
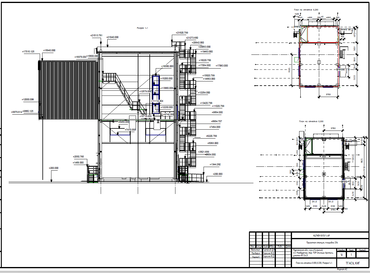
Проектирование Механосборочного цеха тяжелого машиностроения и присыпной станции 204

Описание

Разработать сам проект цеха и разобраться как работать в программном обеспечении Renga и Revit.

Решение

Научился пользоваться программным комплексом, Спроектировал механосборочный цех и присыпная станция 204.

Результат

Результат таков что задание за моделировано и можно использовать его в эксплуатацию.

Презентация проекта

Снимок экрана 2025-10-30 175753.png
Снимок экрана 2025-10-30 175832.png
Снимок экрана 2025-10-30 175908.png
Снимок экрана 2025-10-30 180108.png
Снимок экрана 2025-10-30 180116.png
Снимок экрана 2025-10-30 180125.png

Оценили проект:

0